EasyManua.ls Logo

MHG Heating ProCon 16 - Dimensions of Available Flue Components

Default Icon
114 pages
Print Icon
To Next Page IconTo Next Page
To Next Page IconTo Next Page
To Previous Page IconTo Previous Page
To Previous Page IconTo Previous Page
Loading...
© MHG Heating Ltd
39
MHG Heating Ltd Unit 4 Epsom Downs Metro Centre, Waterfield, Tadworth, Surrey KT20 5LR
Telephone 08456 448802 Fax 08456 448803 Email info@mhgheating.co.uk
Web www.mhgheating.co.uk
010711
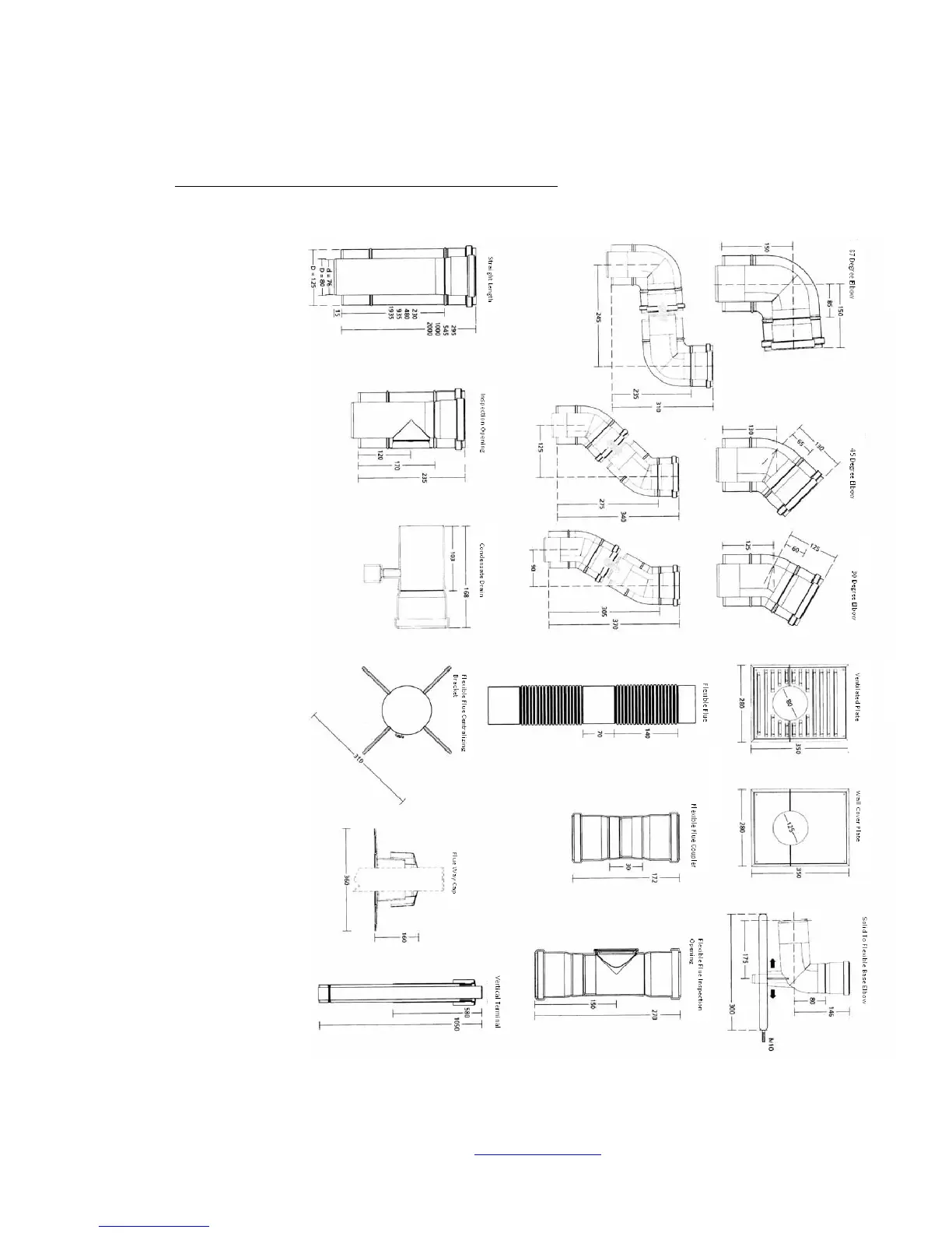
10.6 Dimensions of Available Flue Components (DN80/125mm)

Related product manuals