EasyManua.ls Logo

MHG Heating ProCon 16 - Page 6

Default Icon
114 pages
Print Icon
To Next Page IconTo Next Page
To Next Page IconTo Next Page
To Previous Page IconTo Previous Page
To Previous Page IconTo Previous Page
Loading...
© MHG Heating Ltd
6
MHG Heating Ltd Unit 4 Epsom Downs Metro Centre, Waterfield, Tadworth, Surrey KT20 5LR
Telephone 08456 448802 Fax 08456 448803 Email info@mhgheating.co.uk
Web www.mhgheating.co.uk
010711
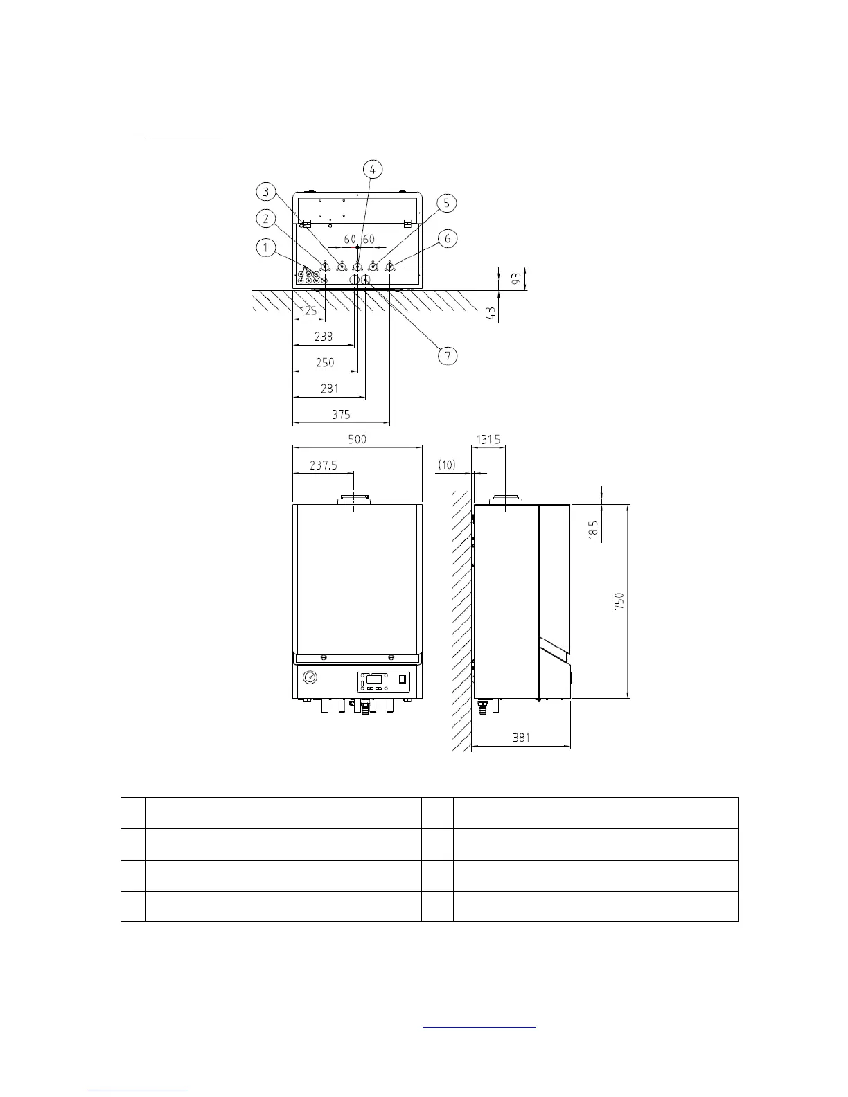
3.0 Dimensions. 16 – 47 Boilers
Legend
1 Cable Entry Grommets 5
Hot Water Primary Return 22mm (HS Models)
Cold Water Inlet 22mm (S Models)
2
Heating Flow 22mm (All Models)
6 Heating Return 22mm (All Models)
3
Hot Water Primary Flow 22mm (HS Models)
Hot Water Outlet 22mm (S Models)
7 Condensate Outlet ¾” BSP Plastic
4 Gas Inlet 22mm 7.1
Condensate Cleanout Connection ¾” Cap

Related product manuals