EasyManua.ls Logo

Midea MCCU-7CN2 - Page 34

Midea MCCU-7CN2
74 pages
Print Icon
To Next Page IconTo Next Page
To Next Page IconTo Next Page
To Previous Page IconTo Previous Page
To Previous Page IconTo Previous Page
Loading...
R407C MCCU Technical Manual MCAC-UTSM-2012-05
34
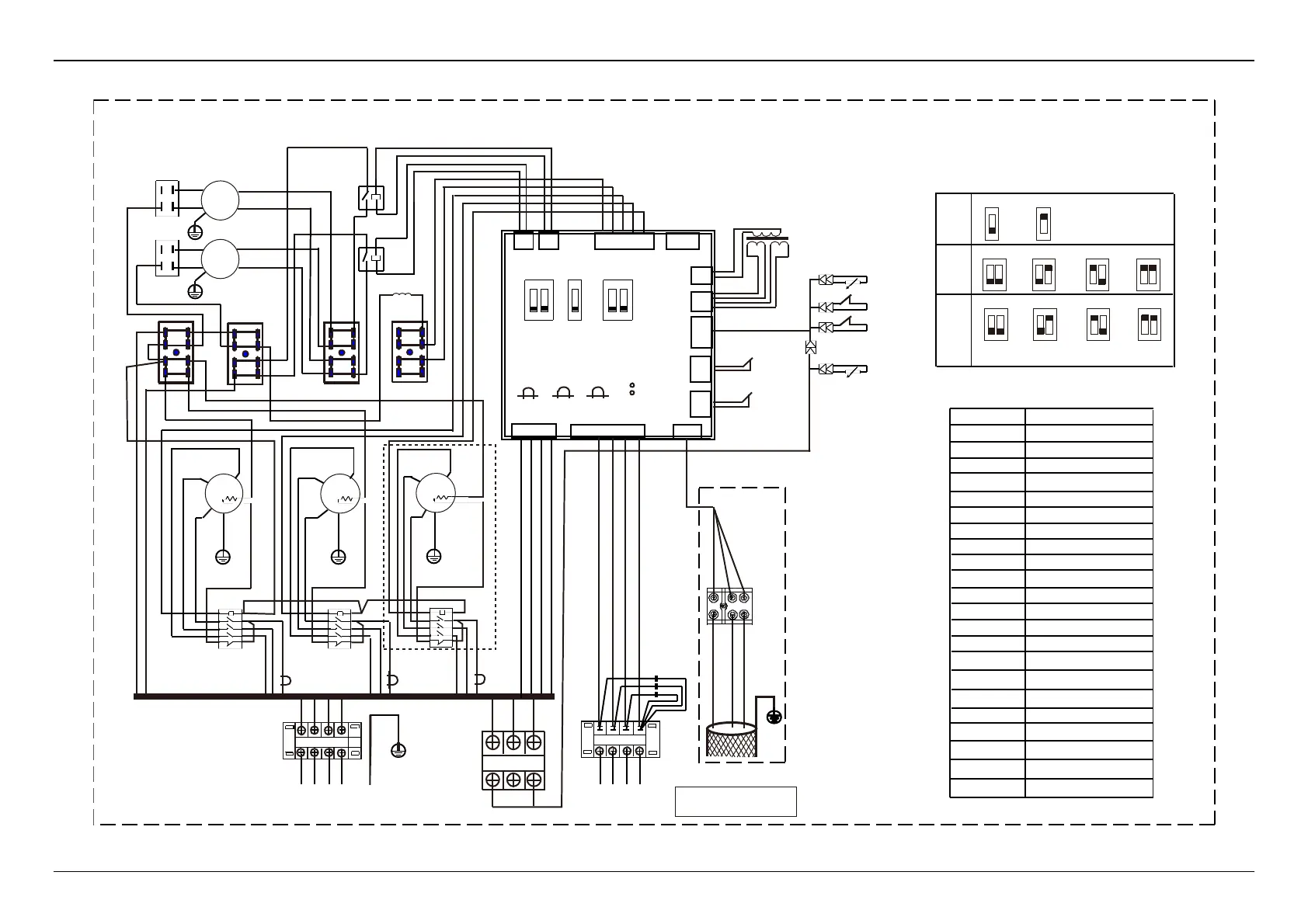
10.15 MCCU-35HN2
12
ON
W
COMP(1)
U
V
A
XT1
21
22
KM(2)
5
3
1
A1
6
4
2
A2
21
22
KM(1)
5
3
1
A1
6
4
2
A2
W
COMP(2)
U
V
CN203
CN208
CN206
CN10
CN101RL2
RL1
CN11
CN201
CN200
12
3
4
B
C
N
T
1
HEAT(B)
HEAT(A)
Y/G
POWER
380V-415V 3N
~
50Hz
SW1
MAIN CONTROL BOARD
L-PRO(A)
CN9
H-PRO(A)
W
COMP(3)
U
V
HEAT(C)
KM(3)
21
22
5
3
1
A1
6
4
2
A2
CT(1) CT(2) CT(3)
KM1
KM2
RED
WHITE
FAN1
FAN2
CT(1)
CT(2)
CT(3)
BLUE
S
.
V
WIRING DIAGRAM
(OUTDOOR UNIT)
TO INDOOR UNIT
BLUE
BLUE
BLUE
BLUE
BLUE
WHITE
WHITE WHITE
RED RED RED
BLACK
BROWN
BLUE
BLUE
WHITE
RED
Y/G
T1
K1(A),K1(B)
XT1
RT3A
KM(1,2,3)
S.V
HEAT(1,2,3)
SW1,SW2,SW3
XT2
RT4
COMPRESSOR
OUTDOOR FAN
FAN CAP
4-WAY VALVE
C1,C2,C3
KM1,2
CT(1,2,3)
AC CONTACTOR
CRANK
CURRENT DETECTOR
4-WAY TERMINAL
4-WAY TERMINAL
HIGH PRESSURE SWITCH
PIPE TEMP.SENSOR
ROOM TEMP.SENSOR
CONNECTORS
LOW PRESSURE SWITCH
TEMP.PROTECT SWITCH
TRANSFORMER
SWITCH
FILTER CAPACITOR
RELAY
CN8-CN208
P.C.BOARD SOCKETS
H-PRO(A)
XS1-5,XP1-5
FAN1 FAN2
COMP(A,B,C)
CAP1 CAP2
CODE
PART NAME
L-PRO(A)
LED1
LED2
HIGH LOW
BLACK
BLACK
RED
WHITE
BLUE
BLACK
Y/G
BLUE
BLACK
BLACK
BLUE
BLUE
WHITE
RED
BROWN
BLUE
WHITE
RED
BROWN
BLUE
WHITE
RED
BLACK
RED
WHITE
BLUE
BLACK
BLACK
RED
WHITE
BLUE
RED
BLUE
BROWN
BLACK
BROWN
BROWN
Y/G
Y/G
Y/G
BLACK
12
ON
1
ON
SW2
SW3
XT3
XT4
XT5
XT6
CN100
YELLOW
XT3-XT6
CONNECTOR
BLACK
BROWN
BROWNBROWN
BROWNBROWN
BLUE
BLUE
C1
C2
C3
FUNCTION OF SWITCH
12
14A
12
20A
ON
12
18A
ONON
12
16A
ONON
12
No.0 Unit(MAIN)
ON
12
No.1 Unit(AUX)
ON
12
No.2 Unit(AUX)
ONON
12
No.3 Unit(AUX)
ONONON
1
NET ON
ONONON
1
NET OFF
ONONON
SW2
SW1
SW3
NOTE:SW2 default settings as NET OFF.
SW1 default settings as main unit (No.0unit)
76kBtu/h
96kBtu/h
150kBtu/h
120kBtu/h
(Reserve)
R
S
T
POWER
PROTECTOR
RED
WHITE
BLUE
RT3A
XS2XP2
XP3
RT4
XS1
XP1
K1(A)
(WHITE)
( BLACK)
XS3
XP4
XS4
K1(B)
XP5
XS5
BLACK
WHITE
XT7
3-WAY TERMINAL
XT2
ON
BLUE
E
P
Q
XT7
COM
NO
NOTEPLEASE USE 3-CORE SHIELDED WIRE
TO OUTDOOR COM. BUS

Related product manuals