EasyManua.ls Logo

Midea MCCU-7CN2 - Refrigerant Cycle Diagram

Midea MCCU-7CN2
74 pages
Print Icon
To Next Page IconTo Next Page
To Next Page IconTo Next Page
To Previous Page IconTo Previous Page
To Previous Page IconTo Previous Page
Loading...
R407C MCCU Technical Manual MCAC-UTSM-2012-05
6
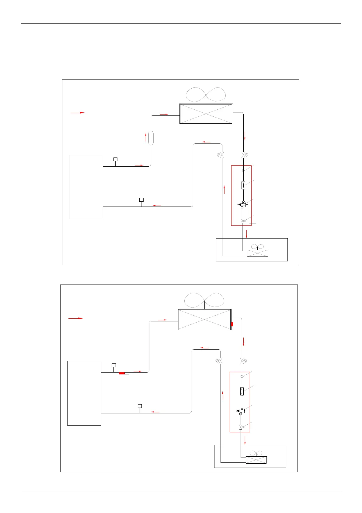
6. Refrigerant cycle diagram
Cooling only:
4.1 MCCU-7CN2
4.2 MCCU-10CN2MCCU-14CN2
Sight glass
TXV
Filter drier
Solenoid valve
Connection accessories
HP Switch
Outdoor heat-exchanger
Stop valve
Stop valve
LP Switch
Cooling
Compressor
Accumulator
Indoor unit
Sight glass
TXV
Filter drier
Solenoid valve
Connection accessories
Discharge temp. sensor
HP Switch
Outdoor heat-exchanger
Stop valve
Stop valve
LP Switch
T3
Cooling
Compressor
Indoor unit

Related product manuals