EasyManua.ls Logo

Midea MDV-V120W/DRN1 - Field Wiring

Midea MDV-V120W/DRN1
102 pages
Print Icon
To Next Page IconTo Next Page
To Next Page IconTo Next Page
To Previous Page IconTo Previous Page
To Previous Page IconTo Previous Page
Loading...
MCAC-VTSM-2016-10 R410A All DC Inverter Mini VRF
Specifications&Performance 19
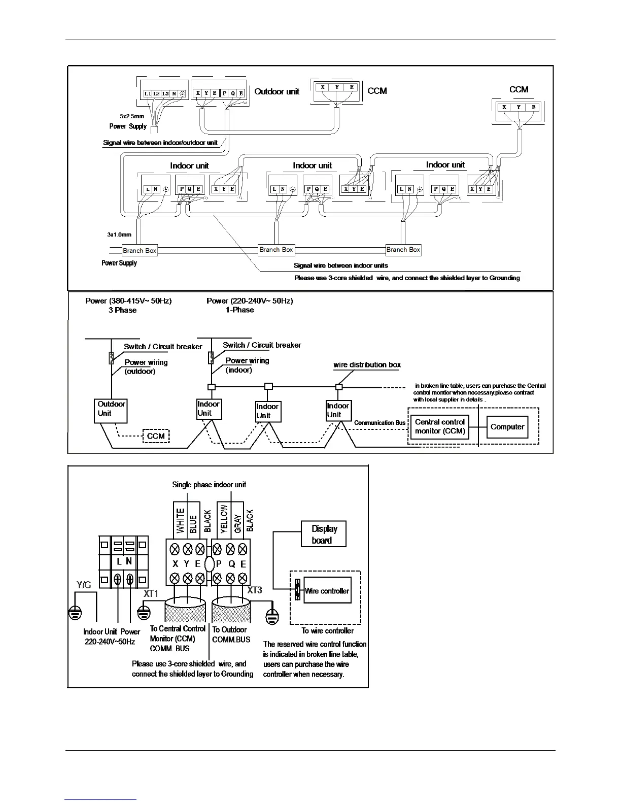
6. Field Wiring

Table of Contents

Related product manuals