EasyManua.ls Logo

Midea MDV-V80W/DN1 - Page 19

Midea MDV-V80W/DN1
122 pages
Print Icon
To Next Page IconTo Next Page
To Next Page IconTo Next Page
To Previous Page IconTo Previous Page
To Previous Page IconTo Previous Page
Loading...
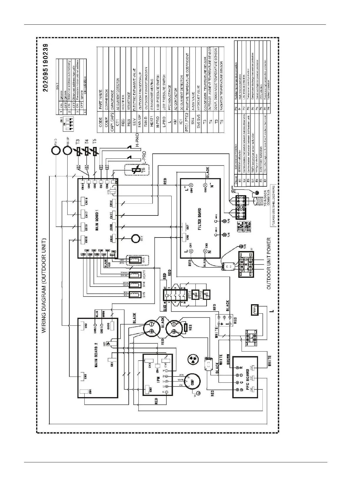
MCAC-VTSM-2013-12 R410a Full DC Inverter Mini VRF
Specifications & Performance 19
120~160 model

Other manuals for Midea MDV-V80W/DN1

Related product manuals