EasyManua.ls Logo

Midea MFGA-24ARN1-Q

Midea MFGA-24ARN1-Q
264 pages
To Next Page IconTo Next Page
To Next Page IconTo Next Page
To Previous Page IconTo Previous Page
To Previous Page IconTo Previous Page
Loading...
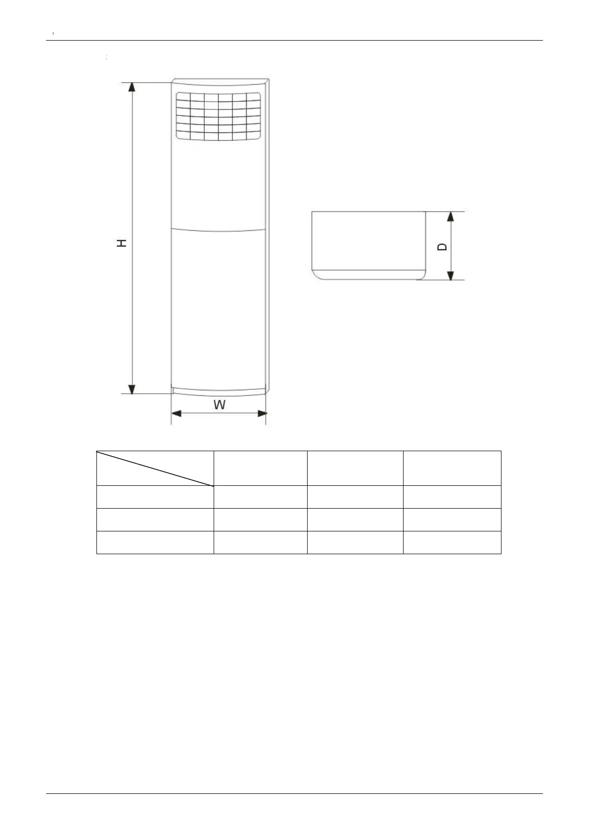
Dimensions
112
2.
Dimensions
112
Dimensions
2.
Model
Dimensions
Dimension
Model
18
~24
48
60
Dimension
~24
48
60
Dimension
W(mm)
5
10
550
610
W(mm)
10
550
610
D(mm)
240
350
390
GA Floor
H(mm)
1695
1800
1925
GA Floor
-
standing type
standing type

Table of Contents

Related product manuals