EasyManua.ls Logo

Midea MFGA-24ARN1-Q - Dimensions

Midea MFGA-24ARN1-Q
264 pages
Print Icon
To Next Page IconTo Next Page
To Next Page IconTo Next Page
To Previous Page IconTo Previous Page
To Previous Page IconTo Previous Page
Loading...
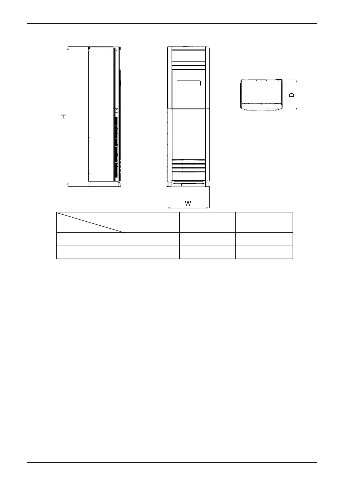
Dimensions
J2 Floor-standing Type 131
2. Dimensions
Dimension
Mode
W(mm) D(mm) H(mm)
24 500 290 1700
48 540 410 1825

Table of Contents

Related product manuals