EasyManua.ls Logo

Midea MFGA-24ARN1-Q - Dimensions

Midea MFGA-24ARN1-Q
264 pages
Print Icon
To Next Page IconTo Next Page
To Next Page IconTo Next Page
To Previous Page IconTo Previous Page
To Previous Page IconTo Previous Page
Loading...
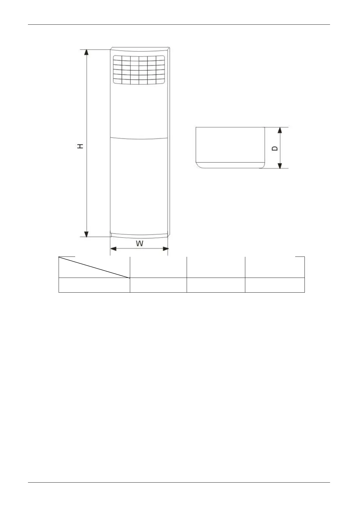
Dimensions
160 E2 Floor-standing Type
2. Dimensions
Dimension
Mode
W(mm) D(mm) H(mm)
60
605 385 1895

Table of Contents

Related product manuals