EasyManua.ls Logo

Midea MFGA-24ARN1-Q - Page 179

Midea MFGA-24ARN1-Q
264 pages
Print Icon
To Next Page IconTo Next Page
To Next Page IconTo Next Page
To Previous Page IconTo Previous Page
To Previous Page IconTo Previous Page
Loading...
Piping Diagrams
Outdoor Units 175
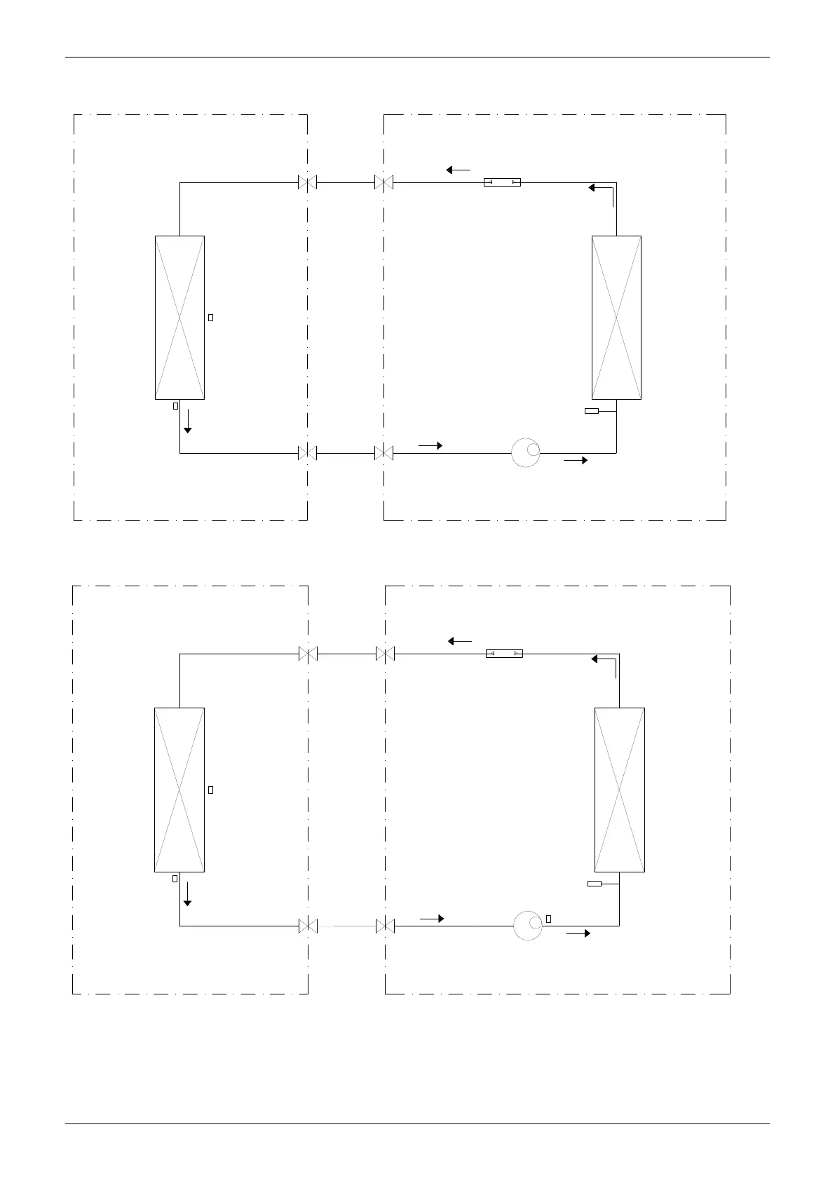
MOD30U-36CN1-R, MOD30U-48CN1-RB4
INDOOR OUTDOOR
LIQUID SIDE
GAS SIDE
HEAT
EXCHANGE
(EVAPORATOR)
HEAT
EXCHANGE
(CONDENSER)
COMPRESSOR
T2 Evaporator
temp. sensor
T1 Room temp.
sensor
High pressure
switch
Throttle orifice
MOD32U-36CN1-QB6
INDOOR OUTDOOR
LIQUID SIDE
GAS SIDE
HEAT
EXCHANGE
(EVAPORATOR)
HEAT
EXCHANGE
(CONDENSER)
COMPRESSOR
T2 Evaporator
temp. sensor
T1 Room temp.
sensor
High pressure
switch
Throttle orifice
T5 Discharge
temp. sensor

Table of Contents

Related product manuals