EasyManua.ls Logo

Midea MFGA-24ARN1-Q - Page 217

Midea MFGA-24ARN1-Q
264 pages
Print Icon
To Next Page IconTo Next Page
To Next Page IconTo Next Page
To Previous Page IconTo Previous Page
To Previous Page IconTo Previous Page
Loading...
Indoor unit installation
Installation 213
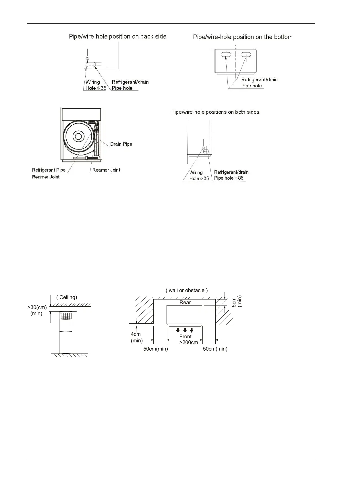
3.8 M & J2 floor standing indoor unit installation
3.8.1 Service space for indoor unit
a. A place which provides the spaces around the indoor unit as required above in the diagram.
b. A place where is no obstacle near the inlet and outlet area.
c. A place which can bear the weight of the indoor unit.
d. A place which allows the air filter to be removed downward.
e. A place where the reception range is not exposed to direct sunlight.
f. In the center of the room where possible.
3.8.1.1 Please stand the unit in hard and flat ground;
Please reserve space for installation and maintenance.
3.8.2 Installing
3.8.2.1. Anti-falling;
To prevent the indoor unit from falling, you must:
a. Pay full attention to the unit because its long outer shape makes it easy to fall;
b. Firmly fix the unit to the wall or in the ground to avoid accidental falling.

Table of Contents

Related product manuals