EasyManua.ls Logo

Midea MFGA-24ARN1-Q - Page 70

Midea MFGA-24ARN1-Q
264 pages
Print Icon
To Next Page IconTo Next Page
To Next Page IconTo Next Page
To Previous Page IconTo Previous Page
To Previous Page IconTo Previous Page
Loading...
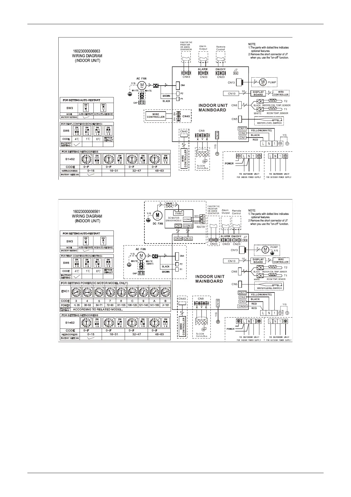
Wiring Diagrams
66 Duct Type
MTI-24CWN1-Q
MTI-30CWN1-Q

Table of Contents

Related product manuals