EasyManua.ls Logo

Midea MGBT-F180W/RN1 - Mgbt-F60 W;Rn1

Midea MGBT-F180W/RN1
213 pages
Print Icon
To Next Page IconTo Next Page
To Next Page IconTo Next Page
To Previous Page IconTo Previous Page
To Previous Page IconTo Previous Page
Loading...
MCAC-ATSM-2014-09 Aqua tempo power series tropical air-cooled scroll chiller 50Hz
37
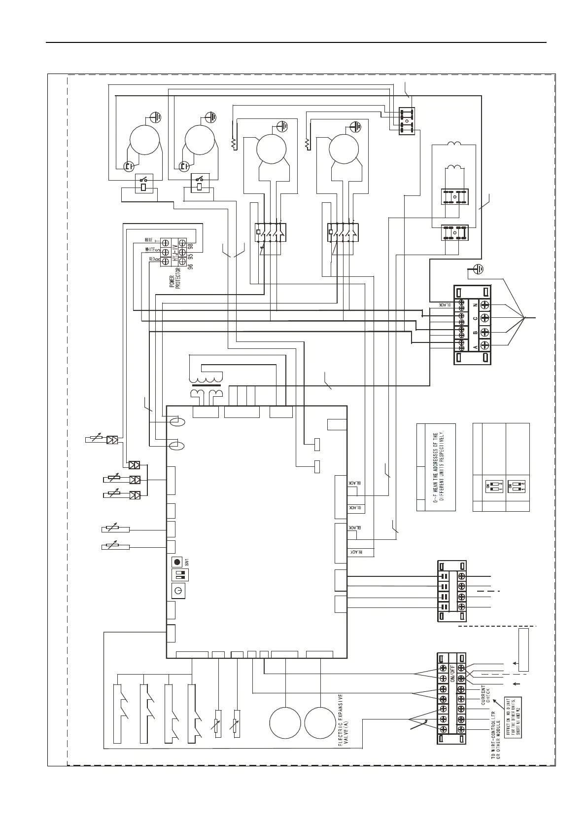
4.2 MGBT-F60W/RN1
Attached picture (I) Electric Drawing of Main Unit and
Auxiliary Unit
XP8
XP7
XS8
XS7
T
3
B
T
3
A
FAN B
HEAT_A
L_ PRO (2B)
H_ PRO (B)
K1 (B )
1 2
ON
KM1
PMV(B)
QUERY
L_ PRO (2A)
H_ PRO (A)
K1 (A )
CN18(WHITE
POWER
CN20RED
TRANS IN
PWM
CN17
CN15WHITE
CN11BLACK
COMP(B) S.V(B)
COMP(A) S.V(A)
CN9
PUMP
CN7
HEAT
CN1WHITE
PMV(A)
CN2RED
PMV(B)
CN21
TBH2
CN3RED
WATER_PRO
CN5
H&L_PRO
COM(I)
COM(O)
CN6
CN8
CN10
CN12 CN13
CN14
CT1
CURRENT(A)
CT2
CURRENT(B)
PMV(A)
CN19WHITE
TRANS OUT
FAN_H
RY7
FAN_L
RY8
(YELLOW)
(BLUE)
COMP B
2
1
5
21
3
6
22
4
T3
A1
A2
T2
T1
HEAT_B
RED
H2 P1 P2H1
XT4
S1
S2
T3A T3B T4
XT5
XT6
R
T
6
R
T
7
CN22
TBH1
T61
T62
L_ PRO (1A)
L_ PRO (1B)
COMP A
2
5
21
3
6
22
4
T3
A1
A2
T2
T1
FAN A
KM2
( U )
( V )
( W )
( U )
( V )
( W )
Y&G
4-WAY TERMINAL
XT1
POWER IN
Y&G
S1
16-WAY DAIL SWITCH FUNCTION
1
2
SWITCH
FUNCTION
RESERVE
NORMAL
2-WAY JUMP SWITCH FUNCTION
DAIL SWITCH
ADDRESS
BLUE
WHITE
RED
RED
WHITE
BLUE
BLACK
S2
(FACTORY SETTING)
4-WAY
TERMINAL
HEAT
PUMP
BLUEBLUEBLUE
BLUE
YELLOW
YELLOW
EFFECT ON NO.0 MODULE
(O N/O F F S IGN AL!)
ORANGE
RED
ELECTRIC EXPANSIVE
VALVE(B)
H I G H P R ES S UR E
P R OTE C TO R B
L O W PR E SSU R E
P R OTE C TO R 2 B
PURPLE
LO W PR E SSU R E
PR O TE C TO R 2 A
YELLOW
HI G H P R ESS U R E
PR O TE C TO R A
TE M P P R OTE C TO R
SW I TC H A
IN-LET WATER TEMP. SENSOR
ANTI-FREEZ ING T EMP. SENSOR
T E M P P R OTE C TO R
S W ITC H B
L O W PR E SSU R E
P R OTE C TO R 1 B
LO W PR E SSU R E
PR O TE C TO R 1 A
RED
BLACK
CONDENSER
TEMP B
CONDENSER
TEMP A
T O TA L O UT- L E T
WAT E R T E MP .
U N I T O U T-L E T
WAT E R T E MP .
RELAY
RELAY
CRANK
COMPRESSOR A
Y&G
RED
RED
WHITE
RED
RED
Y&G
BLACK
RED
WHITE
AC C ONTAC T O R
BLACK
WHITE
BLUE
RED
RED
BLUE
RED
WHITE
CRANK
COMPRESSOR B
RED
AC CONTA CTOR
BLACK
WHITE
BLUE
RED
BLUE
RED
WHITE
Y&G
Y&G
S. V(A )
4-VAL VE A
S.V(B )
4-VAL VE B
MIDDL E
WIR E JOIN T
MIDDL E
WIR E JOIN T
ORANGE
PURPLE
BLUE
BLACK
BLACK(N)
BLACK
BLACK
MIDDL E
WIR E JOIN T
XT 7
RED
RED
WHITE
BLUE
RED
BLACK
BLUEBLUEBLUE
BLUE
YELLOW
YELLOW
ORANGE
BLUE
PURPLE
RED
XP9
XS9
XP9
OUTDOOR T EMP SENSOR
T
4
XP10XS10
WHITE
BLACK
BLACK(N)
RED
WHITE
BLUE
BLACK
BLACK
RED
3
2
2
2
2
BROWN
BROWN
4
2
2
BROWN
BROWN
RED
RED
BLACK(N)
OUTDOOR WIRING DIAGRAM
Q
P
(E)
GRAY
7-WAY
TERMINAL
XT2
Y
E
L
L
O
W
B
L
A
C
K
LOW VOLTAGE SIGNAL
DON'T CONNECT HIGH VOLTAGE!
G
R
A
Y
GRAY
W1 W2
Q
P
(E)
CN23WHITE
ON/OFF
B
L
U
E
R
E
D
T O NEX T
M O DUL E
T O TIM E R
ON/ O F F
P R OVI D E
B Y USE R
B E CON N ECT E D T H E
C O RRE S PON D TE R MIN A L

Table of Contents

Related product manuals