EasyManua.ls Logo

Midea MHC-V6W/D2N8-B - Page 11

Midea MHC-V6W/D2N8-B
113 pages
Print Icon
To Next Page IconTo Next Page
To Next Page IconTo Next Page
To Previous Page IconTo Previous Page
To Previous Page IconTo Previous Page
Loading...
M thermal Mono
202004 9
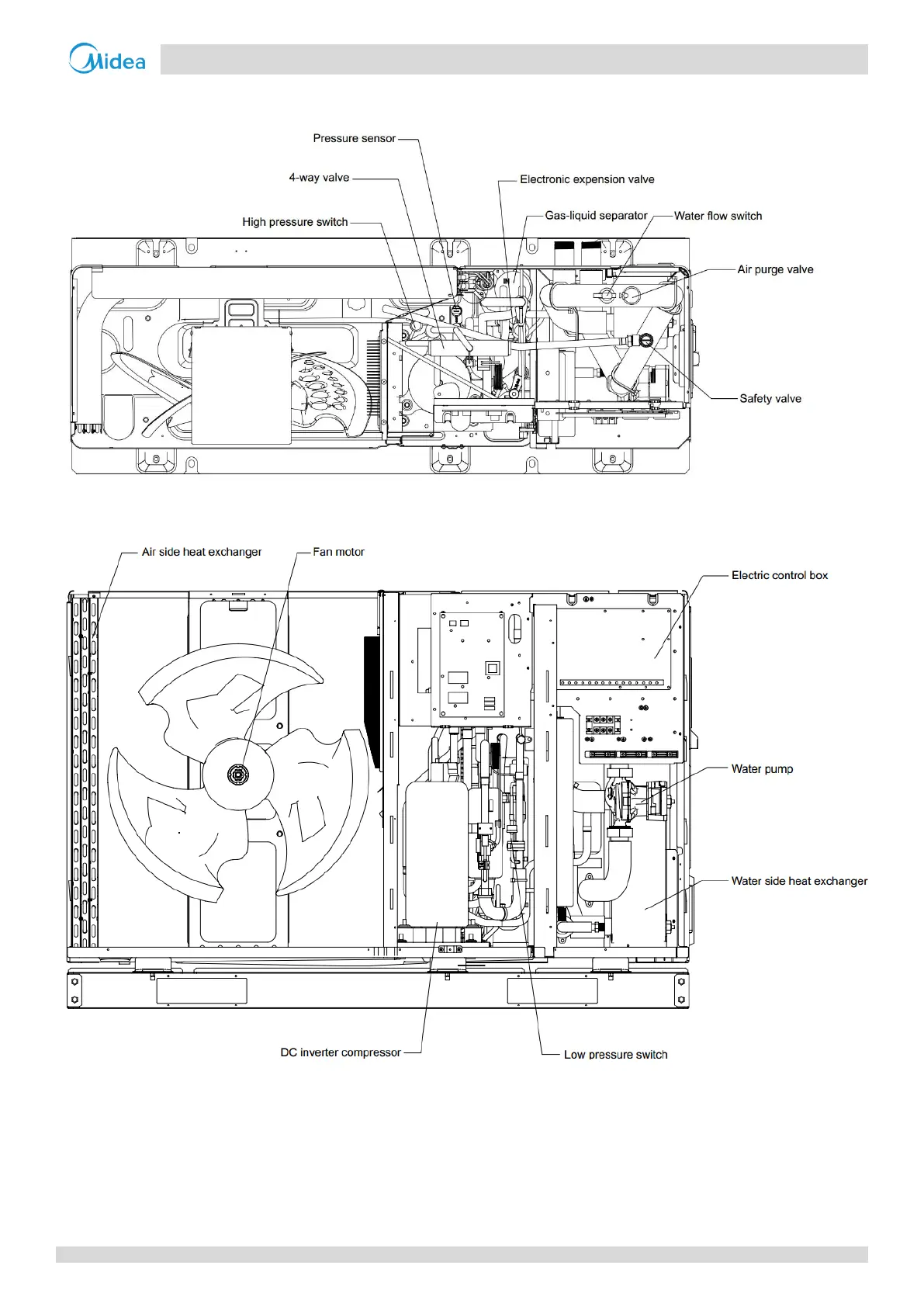
Part 2 - Component Layout and Refrigerant Circuits
MHC-V12W/D2N8-B / MHC-V14W/D2N8-B / MHC-V16W/D2N8-B
Figure 2-1.4: MHC-V12(14, 16)W/D2N8-B top view
Figure 2-1.5: MHC-V12( 14, 16)W/D2N8-B, MHC-V12(14, 16)W/D2RN8-B front view
MHC-V12W/D2RN8-B / MHC-V14W/D2RN8-B / MHC-V16W/D2RN8-B
Midea CAC Confidential

Other manuals for Midea MHC-V6W/D2N8-B

Related product manuals