EasyManua.ls Logo

Midea MSV1-07CR-QB8F - Page 19

Midea MSV1-07CR-QB8F
43 pages
Print Icon
To Next Page IconTo Next Page
To Next Page IconTo Next Page
To Previous Page IconTo Previous Page
To Previous Page IconTo Previous Page
Loading...
Service manual
- 15 -
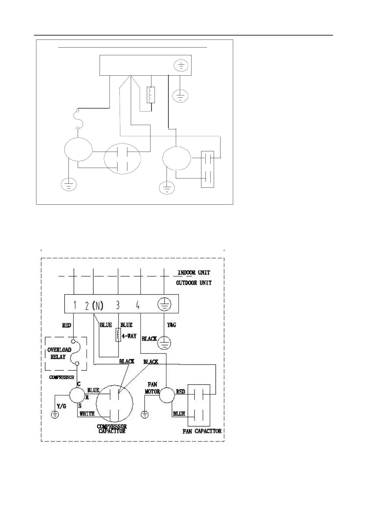
1
2(N)
34
Y&G
BLUE
S
R(M)
RED
C
BLACK
COMPRESSOR
OVERLOAD
RELAY
BLACK
BLUE
BLUE
4-WAY
Y&G
RED
COMPRESSOR
CAPACITOR
FAN
MOTOR
BLUE
RED
FAN CAPACITOR
BLACK
RED
INDOOR UNIT
OUTDOOR UNIT
MSV1-18HR-QB8F
outdoor unit:

Related product manuals