EasyManua.ls Logo

Midea MTI-60HWN1-R - Page 105

Midea MTI-60HWN1-R
264 pages
Print Icon
To Next Page IconTo Next Page
To Next Page IconTo Next Page
To Previous Page IconTo Previous Page
To Previous Page IconTo Previous Page
Loading...
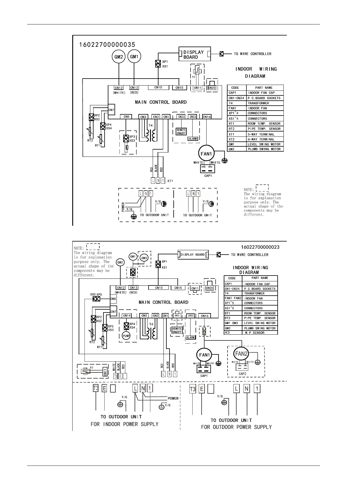
Wiring Diagram
Ceiling & Floor Type 101
MUE-24CRN1-Q, MUE-30CRN1-QB4, MUE-36CRN1-QB4
MUE-36CRN1-QB6

Table of Contents

Related product manuals