EasyManua.ls Logo

Midea MTI-60HWN1-R - Dimensions

Midea MTI-60HWN1-R
264 pages
Print Icon
To Next Page IconTo Next Page
To Next Page IconTo Next Page
To Previous Page IconTo Previous Page
To Previous Page IconTo Previous Page
Loading...
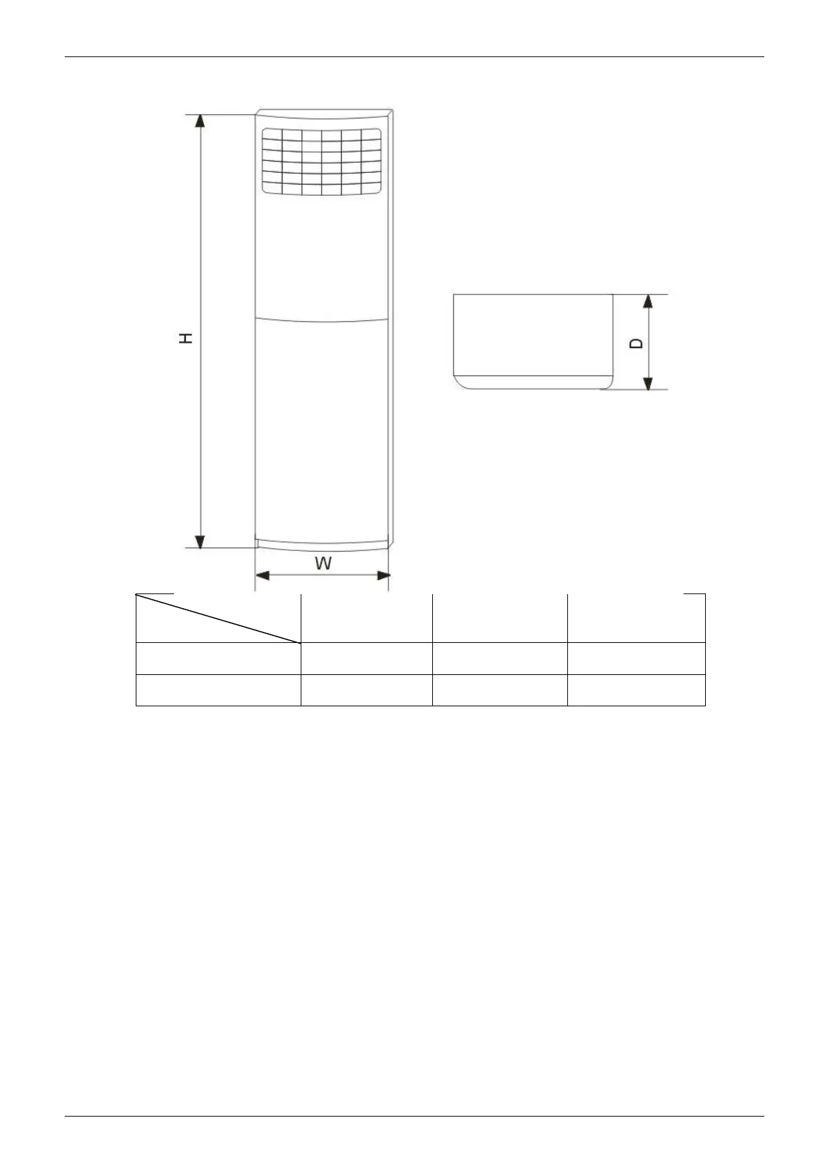
Dimensions
S4 Floor-standing Type 149
2. Dimensions
Dimension
Mode
W(mm) D(mm) H(mm)
24 500 255 1660
48 540 370 1780

Table of Contents

Related product manuals