EasyManua.ls Logo

Midea MTI-60HWN1-R - Page 15

Midea MTI-60HWN1-R
264 pages
Print Icon
To Next Page IconTo Next Page
To Next Page IconTo Next Page
To Previous Page IconTo Previous Page
To Previous Page IconTo Previous Page
Loading...
Four
2.
Four
-
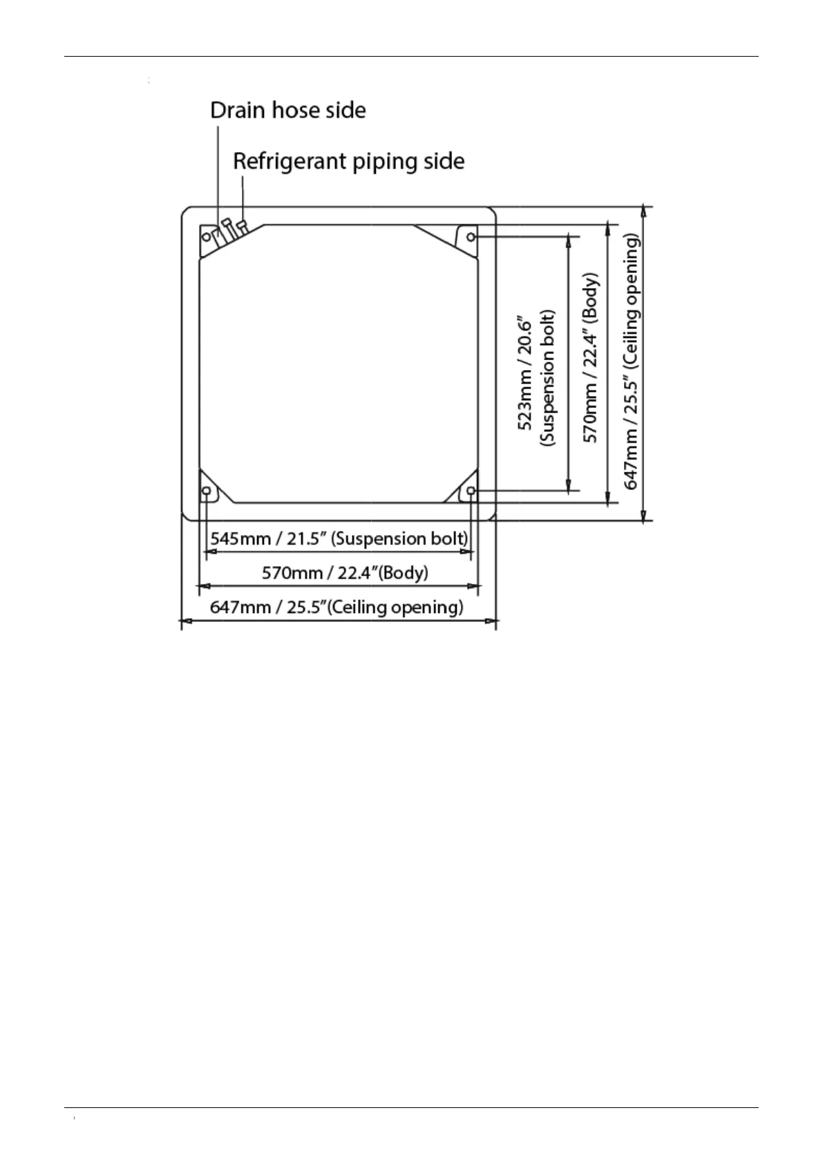
way Cassette Type(Compact)
Dimensions
2.
way Cassette Type(Compact)
Dimensions
way Cassette Type(Compact)
Dimensions
Dimensions
11

Table of Contents

Related product manuals