EasyManua.ls Logo

Midea MTI-60HWN1-R - Page 177

Midea MTI-60HWN1-R
264 pages
Print Icon
To Next Page IconTo Next Page
To Next Page IconTo Next Page
To Previous Page IconTo Previous Page
To Previous Page IconTo Previous Page
Loading...
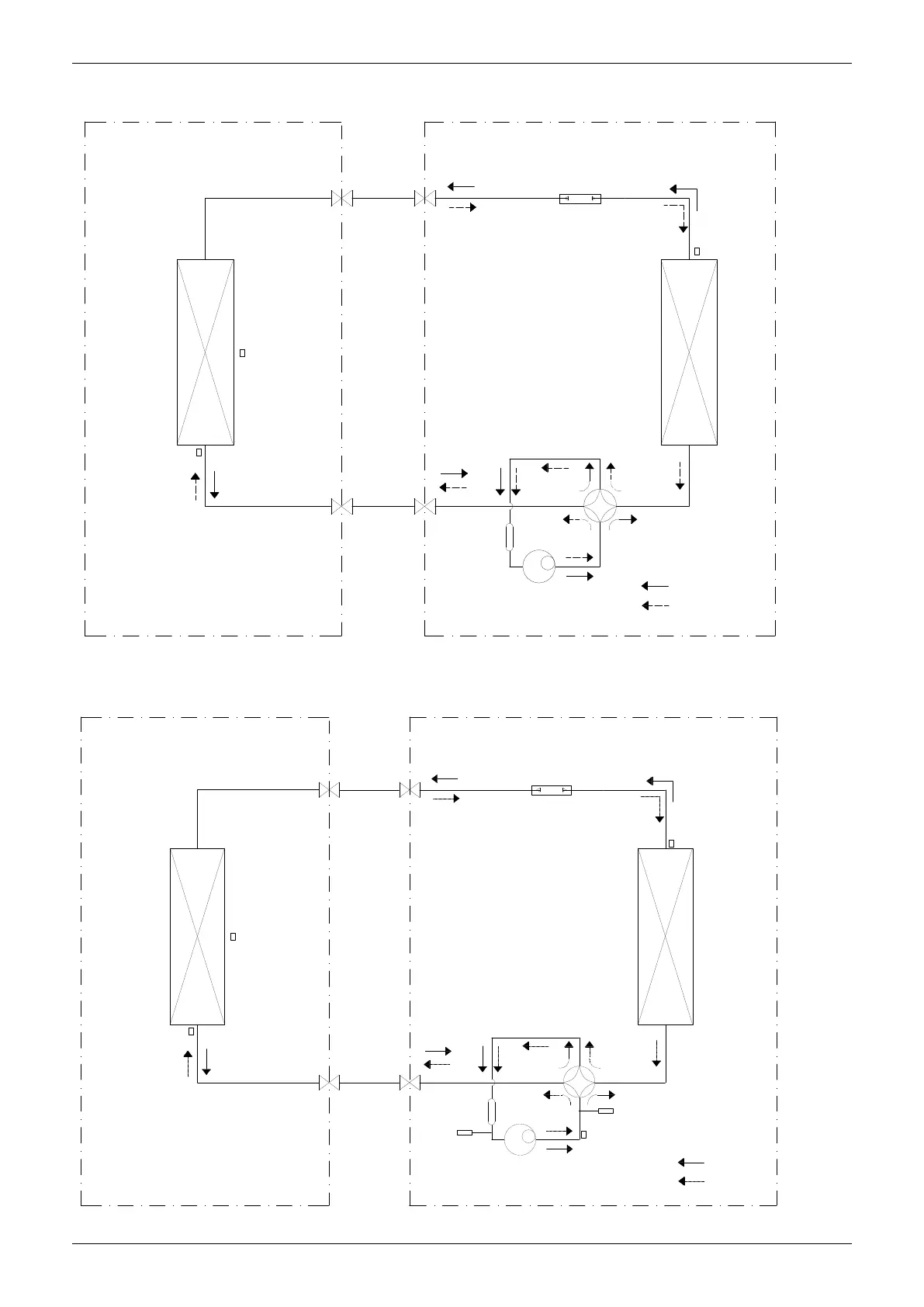
Piping Diagrams
Outdoor Units 173
MOCA30U-24HN1-Q, MOD30U-30HN1-Q
Throttle orifice
LIQUID SIDE
GAS SIDE
HEAT
EXCHANGE
(EVAPORATOR)
HEAT
EXCHANGE
(CONDENSER)
COMPRESSOR
2-WAY VALVE
3-WAY VALVE
4-WAY VALVE
COOLING
HEATING
T2 Evaporator
temp. sensor
T1 Room temp.
sensor
T3 Condenser
temp. sensor
ACCUMULATOR
INDOOR OUTDOOR
MOD31U-36HN1-Q, MOD31U-36HN1-R, MOU-48HN1-R(22023016000194) , MOE30U-60HN1-R
Throttle orifice
LIQUID SIDE
GAS SIDE
HEAT
EXCHANGE
(EVAPORATOR)
HEAT
EXCHANGE
(CONDENSER)
Compressor
2-WAY VALVE
3-WAY VALVE
4-WAY VALVE
COOLING
HEATING
T2 Evaporator
temp. sensor
T1 Room temp.
sensor
Accumulator
T5 Discharge
temp. sensor
High pressure
switch
Low pressure
switch
INDOOR OUTDOOR
T3 Condenser
temp. sensor

Table of Contents

Related product manuals