EasyManua.ls Logo

Midea MTI-60HWN1-R - Page 189

Midea MTI-60HWN1-R
264 pages
Print Icon
To Next Page IconTo Next Page
To Next Page IconTo Next Page
To Previous Page IconTo Previous Page
To Previous Page IconTo Previous Page
Loading...
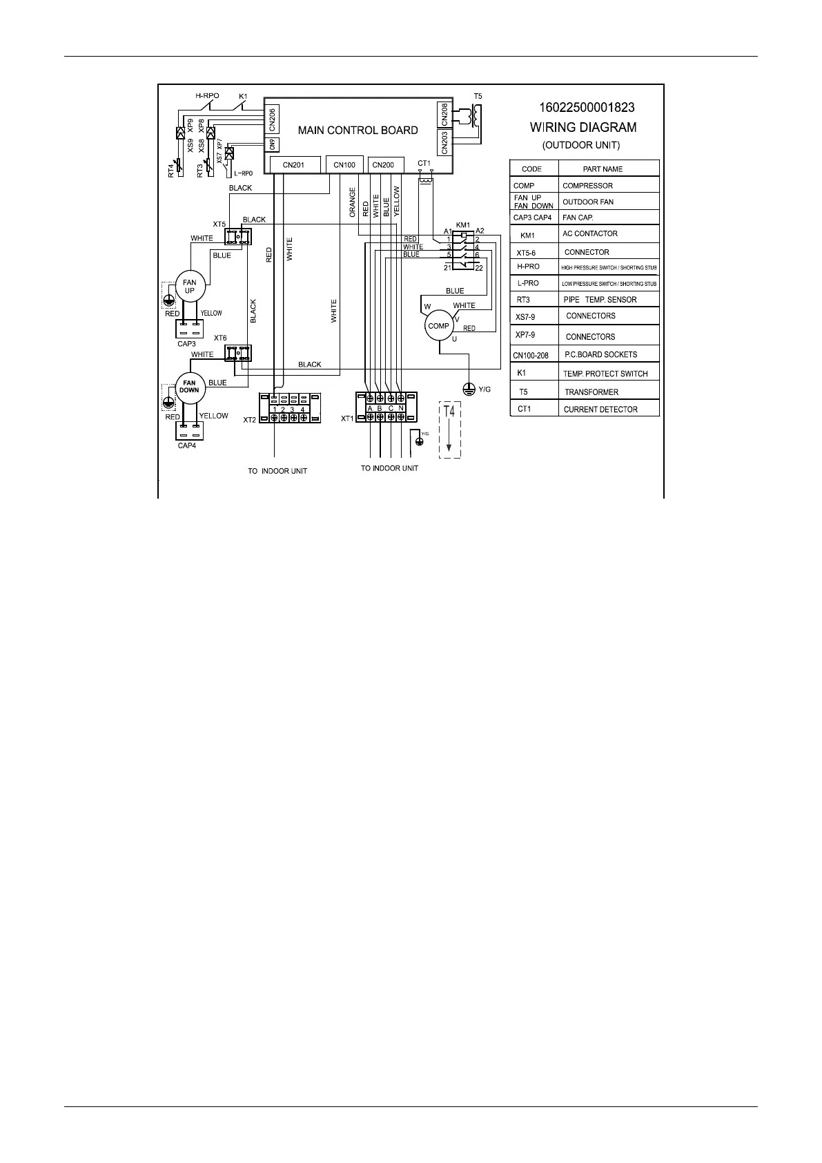
Wiring Diagrams
Outdoor Units 185
MODU-48CN1-R, MODU-60CN1-R

Table of Contents

Related product manuals