EasyManua.ls Logo

Midea MTI-60HWN1-R - Page 89

Midea MTI-60HWN1-R
264 pages
Print Icon
To Next Page IconTo Next Page
To Next Page IconTo Next Page
To Previous Page IconTo Previous Page
To Previous Page IconTo Previous Page
Loading...
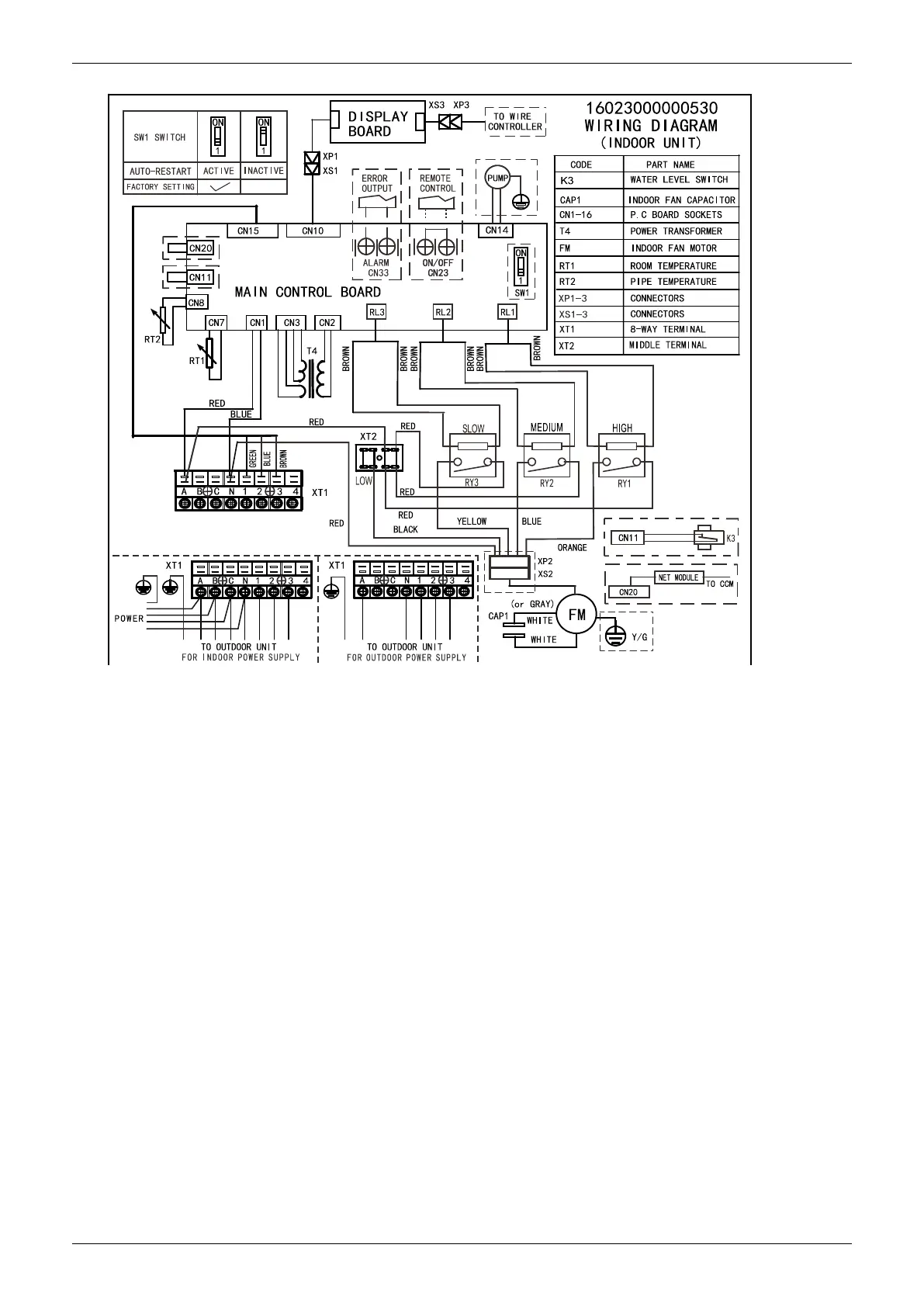
Wiring Diagrams
High Static Pressure Duct Type 85
MHG-48HWN1-R

Table of Contents

Related product manuals