EasyManua.ls Logo

Midea MTIU-07HWFNX-QRD0W - Dimensional Drawings; 5.1 Indoor Unit

Midea MTIU-07HWFNX-QRD0W
140 pages
To Next Page IconTo Next Page
To Next Page IconTo Next Page
To Previous Page IconTo Previous Page
To Previous Page IconTo Previous Page
Loading...
Specifications
Page 22
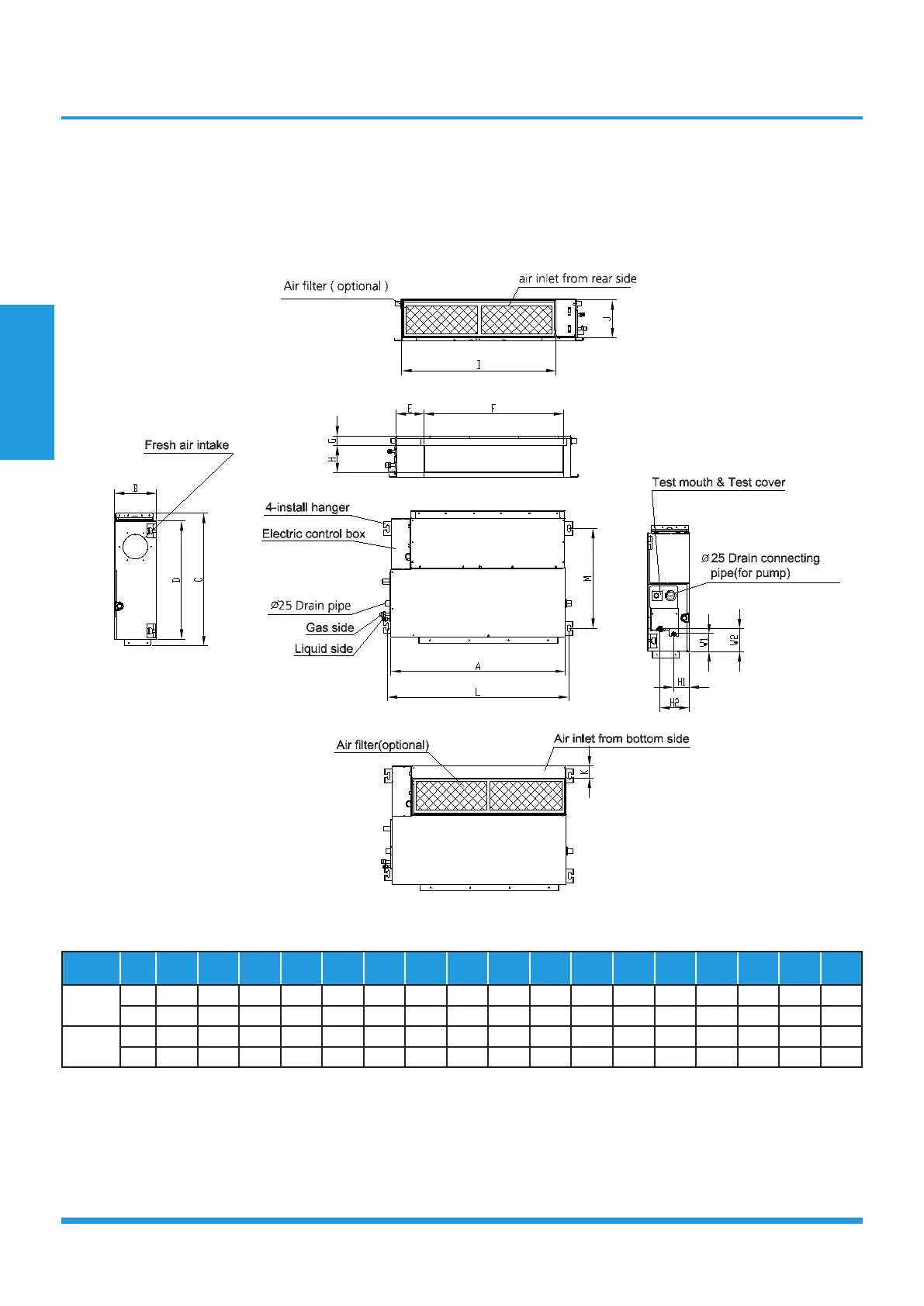
5. Dimensional Drawings
5.1 Indoor Unit
A6 Duct type
Capacity
(Btu/h)
unit A B C D E F G H I J K L M H1 H2 W1 W2
7k~12k
mm 700 200 506 450 137 537 30 152 599 186 50 741 360 84 140 84 84
inch 27.56 7.87 19.92 17.72 5.39 21.14 1.18 5.98 23.58 7.32 1.97 29.17 14.17 3.31 5.51 3.31 3.31
18k
mm 880 210 674 600 140 706 50 136 782 190 40 920 508 78 148 88 112
inch 34.65 8.27 26.54 23.62 5.51 27.8 1.97 5.35 30.79 7.48 1.57 36.22 20 3.07 5.83 3.46 4.41

Table of Contents

Related product manuals