EasyManua.ls Logo

Miele DG 2840 - Side view; Detailed Side View Dimensions

Miele DG 2840
7 pages
Print Icon
To Next Page IconTo Next Page
To Next Page IconTo Next Page
To Previous Page IconTo Previous Page
To Previous Page IconTo Previous Page
Loading...
11232260-01
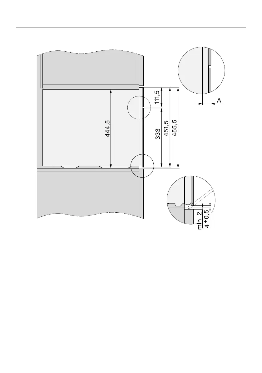
Installation
*
I
N
S
T
A
L
L
A
T
I
O
N
*
Side view
A Glass front: 22mm
Metal front: 23.3mm

Related product manuals