EasyManua.ls Logo

Miele DG 2840 - Installing the steam oven; Step-by-step Installation Procedure

Miele DG 2840
7 pages
Print Icon
To Next Page IconTo Next Page
To Next Page IconTo Next Page
To Previous Page IconTo Previous Page
To Previous Page IconTo Previous Page
Loading...
11232260-01
Installation
*
I
N
S
T
A
L
L
A
T
I
O
N
*
Installing the steam oven
Connect the mains connection cable
to the appliance.
Risk of damage from incorrect
transportation.
Lifting the steam oven by the door
handle could cause damage to the
door.
Use the handle cut-outs on the side
of the casing to lift the appliance.
The steam generator may
malfunction if the steam oven is not
on a level surface.
The maximum deviation from the
horizontal that can be tolerated is 2°.
Push the steam oven into the housing
unit and align it.
When doing so, make sure that the
mains connection cable does not get
trapped or damaged.
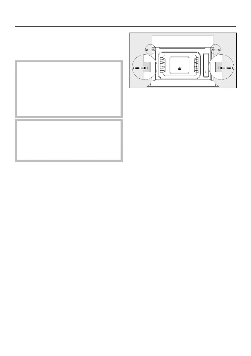
Open the door.
Secure the steam oven to the side
walls of the unit using the wood
screws supplied (3.5x25mm).
Connect the appliance to the mains
electricity supply.
Check the appliance for correct
function in accordance with the
operating instructions.

Related product manuals