EasyManua.ls Logo

Miele HR1421 - Dual Fuel Range Dimensions

Miele HR1421
96 pages
Print Icon
To Next Page IconTo Next Page
To Next Page IconTo Next Page
To Previous Page IconTo Previous Page
To Previous Page IconTo Previous Page
Loading...
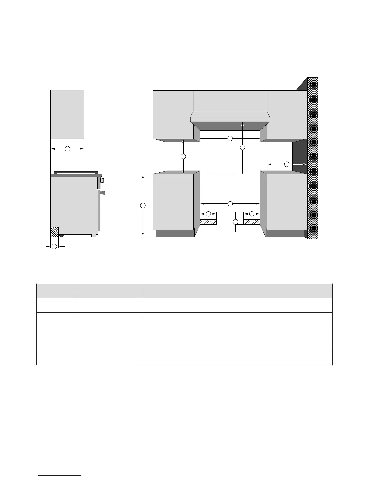
Dual Fuel Range dimensions
46
HR 1924, HR 1934, HR 1935, HR 1936, HR 1954, HR 1955,
HR 1956
B
2
1
F
D
D
A
C
E
4
3
I
n case of combustible construction, an additional minimum clearance of 6" (each side)
is necessary.
Position Dimension Description
13" (330 mm) Maximum depth of top cabinet
18" (457 mm) Minimum distance to bottom edge of top cabinet
35 1/2"–37"
(901 - 940 mm)
Distance from floor to cooktop surface
10" (254 mm) Minimum distance to combustible surfaces

Table of Contents

Other manuals for Miele HR1421

Related product manuals