EasyManua.ls Logo

Miele HR1421 - Slow Roasting; Slow Roasting Operation

Miele HR1421
96 pages
Print Icon
To Next Page IconTo Next Page
To Next Page IconTo Next Page
To Previous Page IconTo Previous Page
To Previous Page IconTo Previous Page
Loading...
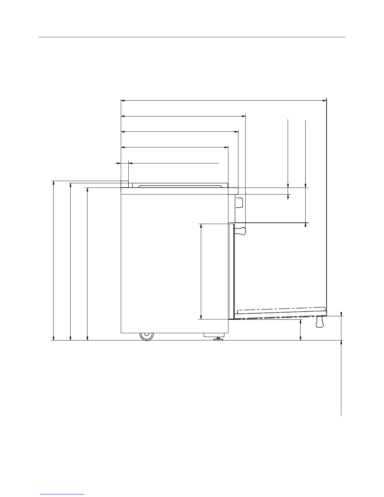
Dual Fuel Range dimensions
60
Detailed views of HR 1936
Side view of HR 1936
47 5/8" (1210mm)
5 9/16" (141mm)
(x)
22 1/16" (561mm)
8 1/8" (207mm)
35 1/2 - 37" (901.7 - 939.8mm)
36 9/16" - 38 1/16" (928.7 - 966.8mm)
37 1/16" - 38 9/16" (941.7 - 979.8mm)
1 3/4" (45mm)
27 1/4" (692mm)
28 15/16" (734.4mm)
1
24 15/16" (633mm)
1 9/16" (40mm)
(x) = Depending on the appliance height adjustment: 4" - 5 1/2 " (101.6 mm -
139.7 mm)

Table of Contents

Other manuals for Miele HR1421

Related product manuals