EasyManua.ls Logo

Miele WDB004 - Building Under Worktop and Washer-Dryer Stacking

Miele WDB004
84 pages
Print Icon
To Next Page IconTo Next Page
To Next Page IconTo Next Page
To Previous Page IconTo Previous Page
To Previous Page IconTo Previous Page
Loading...
Installation and connection
63
Building under a continuous work-
top/ in a kitchen run
Building under kits* must only be in-
stalled/dismantled by a suitably qual-
ified fitter in accordance with the in-
structions supplied.
A special building under kit* with a
cover plate to replace the machine lid
is required. It must be fitted by a suit-
ably qualified fitter to ensure elec-
trical safety. N.B. If there is space to
push the washing machine under the
worktop without removing the lid, the
building under kit is not necessary.
Otherwise it is essential.
Connections for electricity, water and
drainage should be installed in such a
way that they remain accessible
when the machine is in its final posi-
tion.
Fitting instructions are supplied with the
conversion kit.
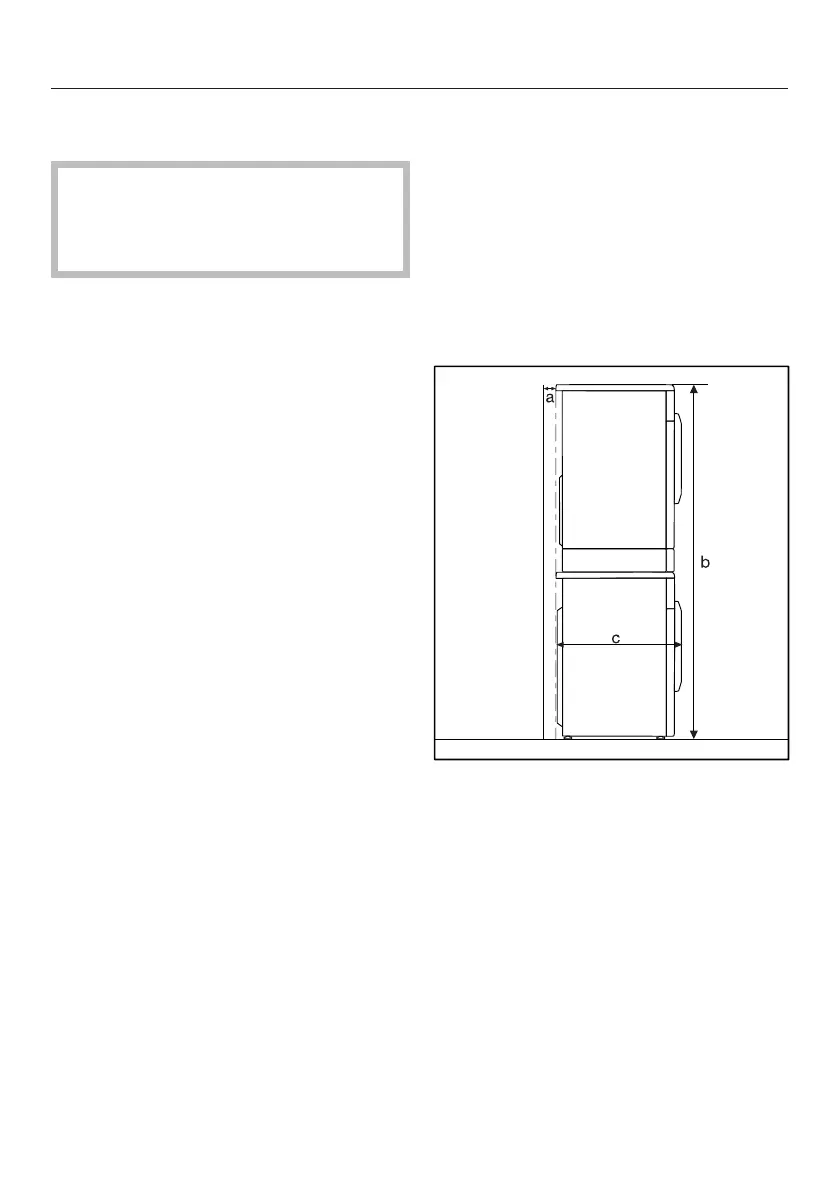
Washer-dryer stack
The washing machine can be combined
with a Miele tumble dryer in a washer-
dryer stack. The appropriate “WTV”
stacking kit* to match your dryer is re-
quired.
All parts marked* are available from
your Dealer or Miele.
Please note:
a = at least 2cm
b = WTV without drawer: 172cm
WTV with drawer: 181cm
c = 64cm

Table of Contents

Related product manuals