EasyManua.ls Logo

Miele WSI 863 - Installing under a Continuous Worktop; Washer-Dryer Stack

Miele WSI 863
112 pages
Print Icon
To Next Page IconTo Next Page
To Next Page IconTo Next Page
To Previous Page IconTo Previous Page
To Previous Page IconTo Previous Page
Loading...
Installation
*
I
N
S
T
A
L
L
A
T
I
O
N
*
85
Installing under a continuous work-
top
Risk of electric shock due to ex-
posed cables
There is a risk of coming into contact
with live parts while the lid is re-
moved.
Do not remove the washing machine
lid.
This washing machine (with lid intact)
can be pushed under a countertop if
there is space to do so.
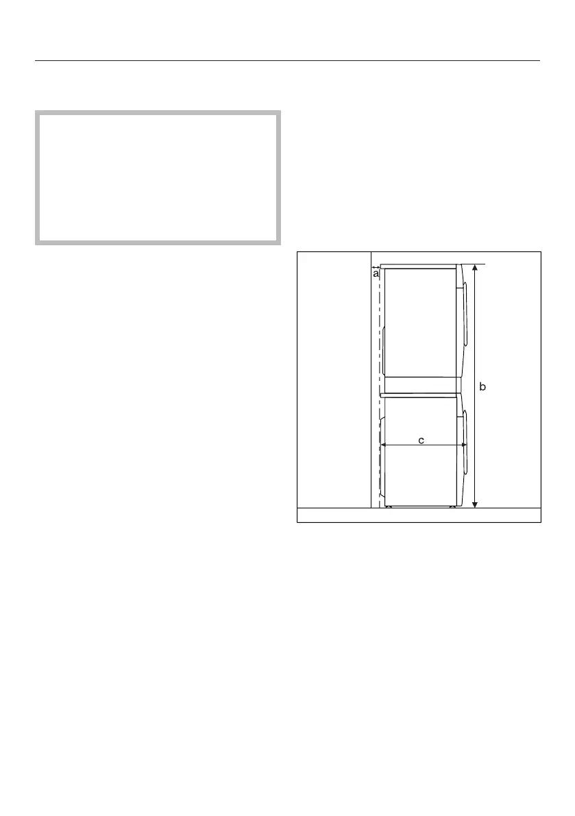
Washer-dryer stack
The washing machine can be combined
with a Miele tumble dryer in a washer-
dryer stack. The appropriate “WTV”
stacking kit* to match your dryer is re-
quired.
All parts marked* are available from
your Dealer or Miele.
Please note:
a = at least 2cm
b = WTV without drawer: 172cm
WTV with drawer: 181cm
c = 65cm

Table of Contents

Related product manuals