EasyManua.ls Logo

Migatronic AUTOMIG - Page 63

Migatronic AUTOMIG
78 pages
Print Icon
To Next Page IconTo Next Page
To Next Page IconTo Next Page
To Previous Page IconTo Previous Page
To Previous Page IconTo Previous Page
Loading...
63
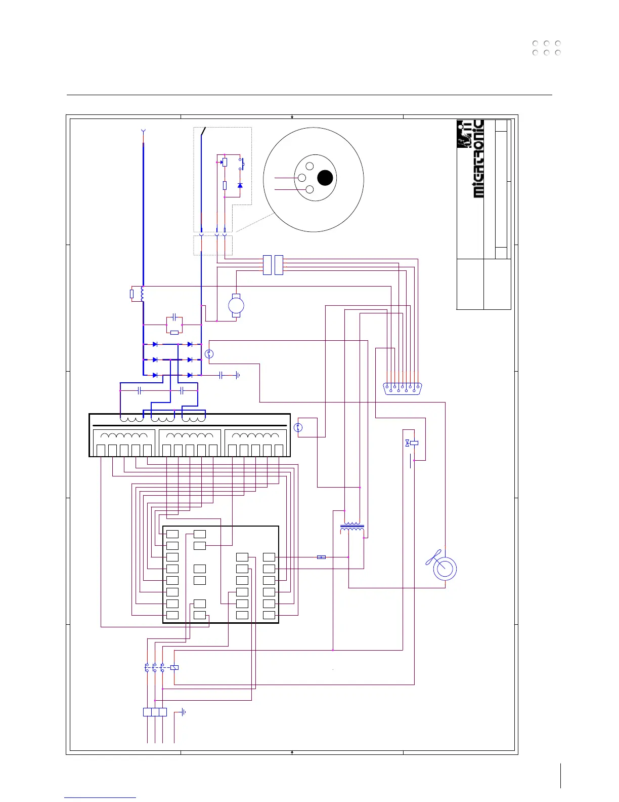
AUTOMIG 183, 230V
5
5
4
4
3
3
2
2
1
1
4 4
3 3
2 2
1 1
ATC
20121212
Aggersundvej 33
78171214
Welding transformer
Machine front
Brown
ZA connector
24V
ZA connector
Mains
230V
44
3
33
2
22
FF
UU5
55
4
CC
BBBAAA
P E
W
V
Blue
Blue
Violet
Violet
Blue/white
Orange
Yellow
Blue
Black
Black
Violet
Red
Black
Gray
White
Blue
Brown
Orange
Orange
Orange
Blue/white
Yellow
WIRE SPEED
Black
200V - 500V: 400mA Slow
Red
Torc h
U
Red
Black
(Optional )
Red
brownBlue Orange
+
-
Black
Brown
Optional kit
(Kit nr. 78861152)
Stepping
switch
W hite
BlueGray.
W hite
White
Blue
Title
Size Document Number Rev
Date: Sheet
of
Design :
Date :
Approved :
Date :
_
Automig 183 230Volt
Migatronic A/S
9690 Fjerritslev
Denmark
A3
11Friday, December 14, 2012
Title
Size Document Number Rev
Date: Sheet
of
Design :
Date :
Approved :
Date :
_
Automig 183 230Volt
Migatronic A/S
9690 Fjerritslev
Denmark
A3
11Friday, December 14, 2012
Title
Size Document Number Rev
Date: Sheet
of
Design :
Date :
Approved :
Date :
_
Automig 183 230Volt
Migatronic A/S
9690 Fjerritslev
Denmark
A3
11Friday, December 14, 2012
Gas valve
TR6
Trafo 230/400V
0V
230V
400V
24V
0V
470nF
120'C NC
1 2
24V DC-MOTOR
2K7
33nF"Y"
10K
TRIGGER
FUSE
470nF
3.3uF
1K
5
9
4
8
3
7
2
6
1
1
2
3
4
1
2
3
4
70 'C NO

Other manuals for Migatronic AUTOMIG

Related product manuals