EasyManua.ls Logo

Migatronic AUTOMIG - Page 64

Migatronic AUTOMIG
78 pages
Print Icon
To Next Page IconTo Next Page
To Next Page IconTo Next Page
To Previous Page IconTo Previous Page
To Previous Page IconTo Previous Page
Loading...
64
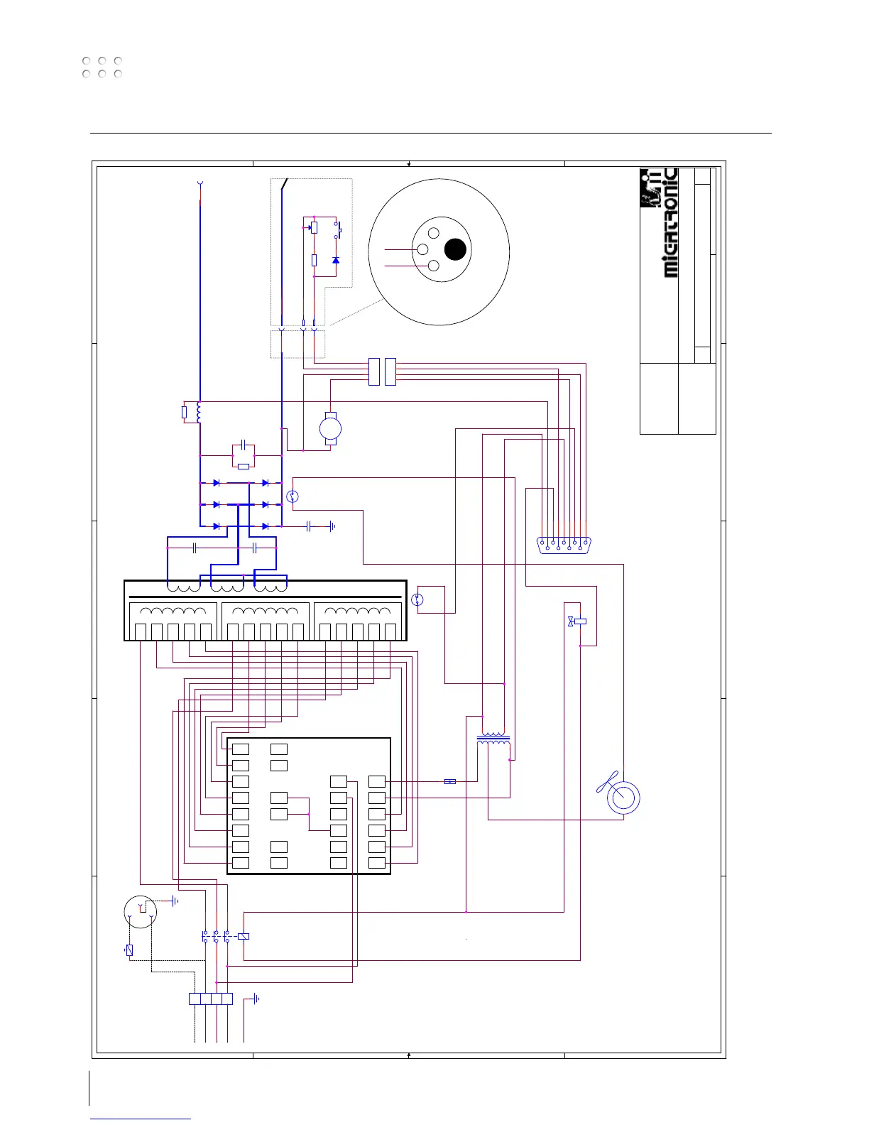
AUTOMIG 183, 400V
5
5
4
4
3
3
2
2
1
1
4 4
3 3
2 2
1 1
ATC
20121212
Aggersundvej 33
78171214
Machine front
Welding transformer
Brown
ZA connector
24V
ZA connector
Mains
230V
Breaker
22
2
33
3
44
4
55
5 UU
FF
AA AB BB
CC
Blue
Blue
V
W
P E
230V Outlet (kit nr. 78861155)
Yellow
Orange
Blue/white
Violet
Violet
Blue
White
Gray
Black
Red
Violet
Black
Black
Blue
Yellow
Blue/white
Orange
Orange
Orange
Brown
Red
200V - 500V: 400mA Slow
Black
WIRE SPEED
Torc h
Optional kit
(Kit nr. 78861152)
Black
Red
U
O
(Optional )
Red
brownOrangeBlue
+
-
Black
Brown
Stepping
switch
Blue
W hite
Gray.
W hite
White
Blue
Title
Size Document Number Rev
Date: Sheet
of
Design :
Date :
Approved :
Date :
_
Automig 183 400Volt
Migatronic A/S
9690 Fjerritslev
Denmark
A3
11Friday, December 14, 2012
Title
Size Document Number Rev
Date: Sheet
of
Design :
Date :
Approved :
Date :
_
Automig 183 400Volt
Migatronic A/S
9690 Fjerritslev
Denmark
A3
11Friday, December 14, 2012
Title
Size Document Number Rev
Date: Sheet
of
Design :
Date :
Approved :
Date :
_
Automig 183 400Volt
Migatronic A/S
9690 Fjerritslev
Denmark
A3
11Friday, December 14, 2012
Gas valve
1K
470nF
470nF
TRIGGER
10A
120'C NC
1 2
33nF"Y"
24V DC-MOTOR
2K7
10K
FUSE
3.3uF
1
2
3
4
5
9
4
8
3
7
2
6
1
1
2
3
4
70 'C NO
TR5
Trafo 230/400V
0V
230V
400V
24V
0V

Other manuals for Migatronic AUTOMIG

Related product manuals