EasyManua.ls Logo

Mitsubishi A1SD75M2 - Page 339

Mitsubishi A1SD75M2
746 pages
Print Icon
To Next Page IconTo Next Page
To Next Page IconTo Next Page
To Previous Page IconTo Previous Page
To Previous Page IconTo Previous Page
Loading...
8 - 5
MELSEC-A
8 ZERO POINT RETURN CONTROL
8.2.2 Machine zero point return method
The method by which the machine zero point is established (method for judging the
zero point position and machine zero point return completion) is designated in the
machine zero point return according to the configuration and application of the
positioning method.
The following table shows the six methods that can be used for this zero point return
method.
(The zero point return method is one of the items set in the zero point return
parameters. It is set in "
Pr.45 Zero point return method" of the basic parameters for
zero point returns.)
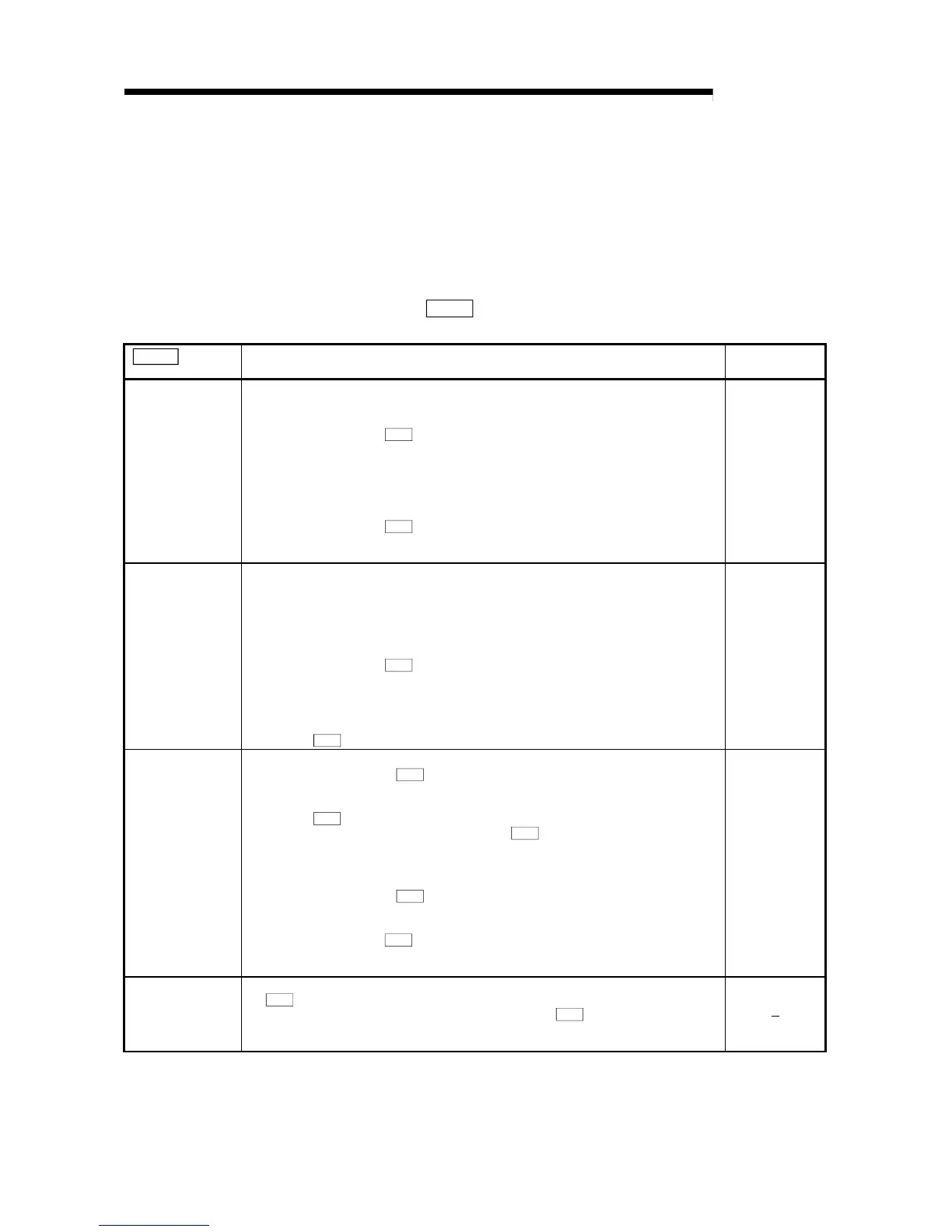
Pr.45
Zero point
return method
Operation details Remarks
Near-point dog
method
When the zero point is passed between a machine zero point return start and deceleration
to a stop by the near-point dog ON to OFF
When the near-point dog turns from OFF to ON, the machine starts deceleration. (The
machine decelerates to "
Pr.49
Creep speed".) After the near-point dog has turned from ON
to OFF, the machine stops at the first zero point*
2
, completing the machine zero point
return.
When the zero point is not passed between a machine zero point return start and
deceleration to a stop by the near-point dog ON to OFF
When the near-point dog turns from OFF to ON, the machine starts deceleration. (The
machine decelerates to "
Pr.49
Creep speed".) When the near-point dog turns from ON to
OFF, the machine decelerates to a stop, resulting in "Zero point not pass at zero point
return" (error code: 210).
Use this method
in the system
where the zero
point can always
be passed
between a
machine zero
point return start
and the near-
point dog ON to
OFF.
Near-point dog
method 2) *
1
When the zero point is passed between a machine zero point return start and deceleration
to a stop by the near-point dog ON to OFF
Same as in the "near-point dog method".
When the zero point is not passed between a machine zero point return start and
deceleration to a stop by the near-point dog ON to OFF
When the near-point dog turns from OFF to ON, the machine starts deceleration. (The
machine decelerates to "
Pr.49
Creep speed".) When the near-point dog turns from ON to
OFF, the machine decelerates to a stop, and the servomotor is rotated one turn in the
opposite direction. (The zero point is passed.) The machine moves in the zero point
direction again, and after the near-point dog has turned from ON to OFF, the machine
stops at the first zero point*
2
, completing the machine zero point return. (The machine
moves at "
Pr.48
Zero point return speed".)
Use this method
in the system
where the "near-
point dog
method" cannot
be used.
Count method 1)
When the zero point is passed from a machine zero point return start until the machine
moves the distance set to "
Pr.52
Setting for the movement amount after near-point dog
ON"
When the near-point dog turns from OFF to ON, the machine starts deceleration and
moves at "
Pr.49
Creep speed".
After the machine has moved the distance set to "
Pr.52
Setting for the movement amount
after near-point dog ON" from the position where the near-point dog turned from OFF to
ON, the machine stops at the first zero point*
2
, completing the machine zero point return.
When the zero point is not passed from a machine zero point return start until the machine
moves the distance set to "
Pr.52
Setting for the movement amount after near-point dog
ON"
When the near-point dog turns from OFF to ON, the machine starts deceleration (The
machine decelerates to "
Pr.49
Creep speed".) When the near-point dog turns from ON to
OFF, the machine decelerates to a stop, resulting in "Zero point not pass at zero point
return" (error code: 210).
Use this method
in the system
where the zero
point can always
be passed
between a
machine zero
point return start
and the near-
point dog ON to
OFF.
Count method 2)
When the near-point dog turns from OFF to ON, the machine starts deceleration and moves
at "
Pr.49
Creep speed".
The machine stops in the position where the distance set to "
Pr.52
Setting for the movement
amount after near-point dog ON" is reached from the position where the near-point dog
turned from OFF to ON, completing the machine zero point return.

Related product manuals