EasyManua.ls Logo

Mitsubishi A1SD75M3

Mitsubishi A1SD75M3
746 pages
To Next Page IconTo Next Page
To Next Page IconTo Next Page
To Previous Page IconTo Previous Page
To Previous Page IconTo Previous Page
Loading...
5 - 165
MELSEC-A
5 DATA USED FOR POSITIONING CONTROL
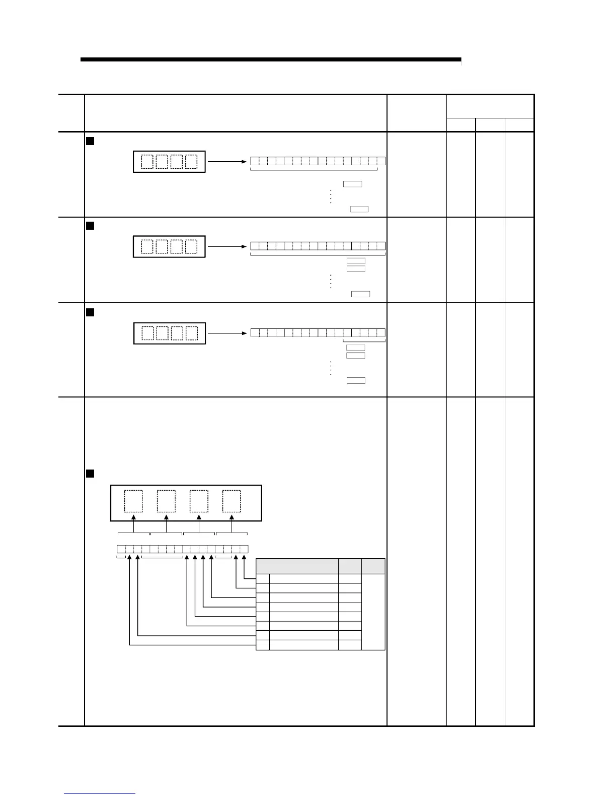
Storage buffer
memory address
Reading the monitor value Default value
Axis 1 Axis 2 Axis 3
Monitoring is carried out with a hexadecimal.
Monitor value
b15 b0b4b8b12
b0: Not used
b15: Servo parameter No.15 ( Pr.115 )
b1: Servo parameter No.1 ( Pr.101 )
0000
H
870 970 1070
Monitoring is carried out with a hexadecimal.
Monitor value
b15 b0b4b8b12
b0: Servo parameter No.16 ( Pr.116 )
b15: Servo parameter No. 31 ( Pr.131 )
b1: Servo parameter No.17 ( Pr.117 )
0000
H
871 971 1071
Monitoring is carried out with a hexadecimal.
Monitor value
b15 b0b4b8b12
b0: Servo parameter No.32 ( Pr.132 )
b4: Servo parameter No.36 ( Pr.136 )
b1: Servo parameter No.33 ( Pr.133 )
b5 to b15: Not used
00
0000
H
872 972 1072
Monitoring is carried out with a hexadecimal.
Not
used
Not
used
Not
used
Buffer
memory
0000000000000000
b15 b0b4b8b12
Monitor value
Storage item
0
0
0
0
0
0: OFF
1: ON
0
READY ON
Servo ON
Zero point pass
In-position
Zero speed
Torque limit
Servo alarm
Servo warning
b0
b1
b4
b5
b6
b7
b13
b14
0
0
0
Default
value
Meaning
0000
H
873 973 1073

Related product manuals