EasyManua.ls Logo

Mitsubishi MR-J4-700A - Page 335

Mitsubishi MR-J4-700A
640 pages
Print Icon
To Next Page IconTo Next Page
To Next Page IconTo Next Page
To Previous Page IconTo Previous Page
To Previous Page IconTo Previous Page
Loading...
11. OPTIONS AND AUXILIARY EQUIPMENT
11 - 4
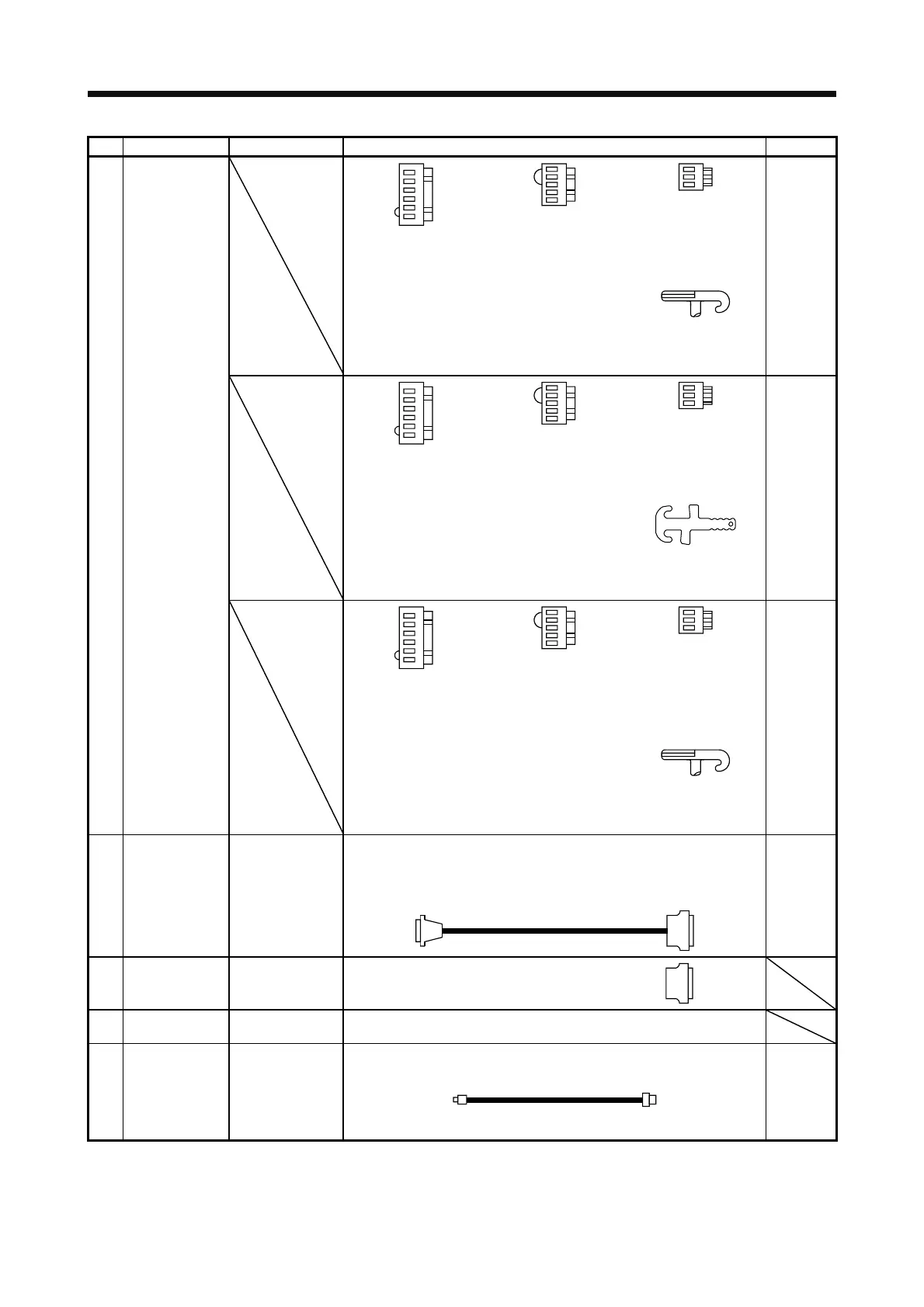
No. Name Model Description Application
1) Servo amplifier
power connector
set
CNP1 Connector:
06JFAT-SAXGDK-H7.5
(JST)
CNP2 Connector:
05JFAT-SAXGDK-H5.0
(JST)
CNP3 Connector:
03JFAT-SAXGDK-H7.5
(JST)
Applicable wire size: 0.8 mm
2
to 2.1 mm
2
(AWG 18 to 14)
Insulator OD: to 3.9 mm
Open tool
J-FAT-OT
(JST)
Supplied
with 200 V
class servo
amplifiers
of 1 kW or
less.
CNP1 Connector:
06JFAT-SAXGFK-XL
(JST)
CNP2 Connector:
05JFAT-SAXGDK-H5.0
(JST)
CNP3 Connector:
03JFAT-SAXGFK-XL
(JST)
CNP3
Applicable wire size:
1.25 mm
2
to 5.5 mm
2
(AWG 16 to 10)
Insulator OD: to 4.7 mm
CNP2
Applicable wire size:
0.8 mm
2
to 2.1 mm
2
(AWG 18 to 14)
Insulator OD: to 3.9 mm
Open tool
J-FAT-OT-EXL
(JST)
Supplied
with 200 V
class servo
amplifiers
of 2 kW
and 3.5
kW.
CNP1 connector:
06JFAT-SAXGDK-
HT10.5
(JST)
CNP2 connector:
05JFAT-SAXGDK-
HT7.5
(JST)
CNP3 connector:
03JFAT-SAXGDK-
HT10.5
(JST)
Applicable wire size: 1.25 mm
2
to 2.1 mm
2
(AWG 16 to 14)
Insulator OD: to 3.9 mm
Open tool
J-FAT-OT-XL
(JST)
Supplied
with 400 V
class servo
amplifiers
of 3.5 kW
or less.
2) Junction terminal
block cable
Junction terminal block connector
Connector: D7950-B500FL
(3M)
CN1 connector
Connector: 10150-6000EL
Shell kit: 10350-3210-000
(3M or equivalent)
MR-J2M-
CN1TBL_M
Cable length:
0.5 m, 1 m
(Refer to section
11.6.)
For
junction
terminal
block
connection
3) CN1 connector
set
MR-J3CN1 Connector: 10150-3000PE
Shell kit: 10350-52F0-008
(3M or equivalent)
4) Junction terminal
block
MR-TB50 Refer to section 11.6.
5) USB cable MR-J3USBCBL3M
Cable length: 3 m
CN5 connector
mini-B connector (5 pins)
Personal computer connector
A connector
For
connection
with PC-AT
compatible
personal
computer

Table of Contents

Related product manuals