EasyManua.ls Logo

Mitsubishi MR-J4-700A - Page 356

Mitsubishi MR-J4-700A
640 pages
Print Icon
To Next Page IconTo Next Page
To Next Page IconTo Next Page
To Previous Page IconTo Previous Page
To Previous Page IconTo Previous Page
Loading...
11. OPTIONS AND AUXILIARY EQUIPMENT
11 - 25
(b) When connecting two brake units to a servo amplifier
POINT
For 400 V class servo amplifiers, two brake units cannot be connected with one
servo amplifier.
To use brake units with a parallel connection, use two sets of FR-BU2 brake
unit. Combination with other brake unit results in alarm occurrence or
malfunction.
Always connect the terminals for master/slave (MSG to MSG, SD to SD)
between the two brake units.
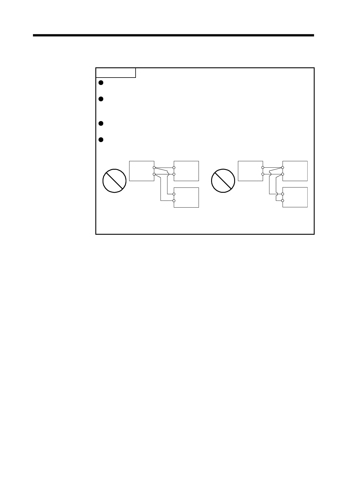
Do not connect the converter unit and brake units as below. Connect the cables
with a terminal block to distribute as indicated in this section.
N/-
P/+
Brake unit
Brake unit
Servo amplifie
r
P+
N-
N/-
P/+
Connecting two cables to P+ and N-
terminals
N/-
P/+
Brake unit
Brake unit
Servo amplifie
r
P+
N- N/-
P/+
Passing wiring

Table of Contents

Related product manuals