EasyManua.ls Logo

Mitsubishi MUX-2A28VB - Page 22

Mitsubishi MUX-2A28VB
72 pages
To Next Page IconTo Next Page
To Next Page IconTo Next Page
To Previous Page IconTo Previous Page
To Previous Page IconTo Previous Page
Loading...
22
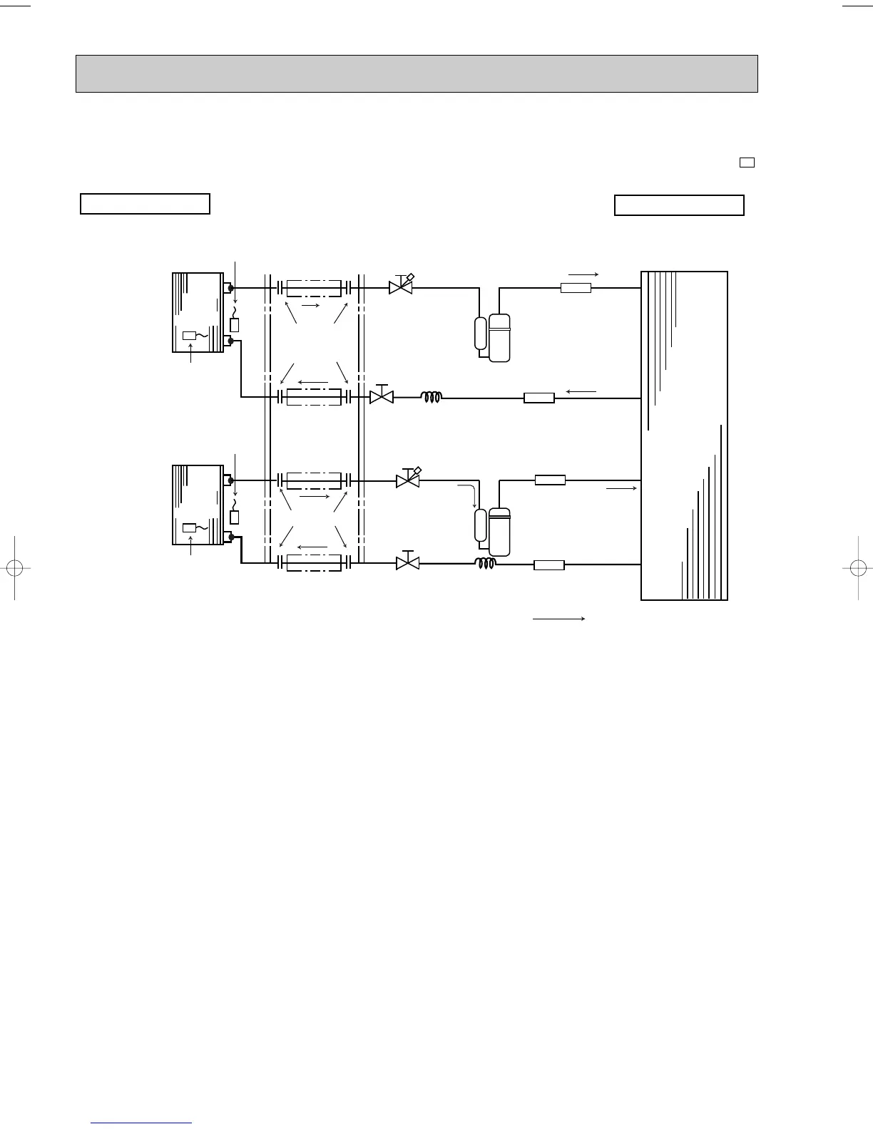
OUTDOOR UNIT
INDOOR UNIT
UNIT A
Indoor
heat
exchanger
Indoor coil
thermistor
RT12
Room
temperature
thermistor
RT11
UNIT B
Indoor
heat
exchanger
Outdoor
heat
exchanger
Indoor coil
thermistor
RT12
Room
temperature
thermistor
RT11
Flared connection
Flared connection
Stop valve
with service port
Stop valve
Stop valve
with
service port
Capillary tube
Capillary tube
Muffler
Muffler
Strainer
#100
Compressor(A)
Compressor(B)
Refrigerant flow in cooling
Stop valve
[3.0 x [1.4 x 850
[3.0 x [1.4 x 1100
(With insulation)
Refrigerant pipe
[6.35
(With insulation)
Refrigerant pipe
[6.35
(With insulation)
Refrigerant pipe
[9.52
(With insulation)
Refrigerant pipe
[9.52
Strainer
#100
MUX-2A59VB-
E1
Unit : mm
OB384--1.qxp 05.1.17 13:08 Page 22

Related product manuals