EasyManua.ls Logo

Mitsubishi PEH series - Page 25

Mitsubishi PEH series
82 pages
Print Icon
To Next Page IconTo Next Page
To Next Page IconTo Next Page
To Previous Page IconTo Previous Page
To Previous Page IconTo Previous Page
Loading...
- 23 -
2020
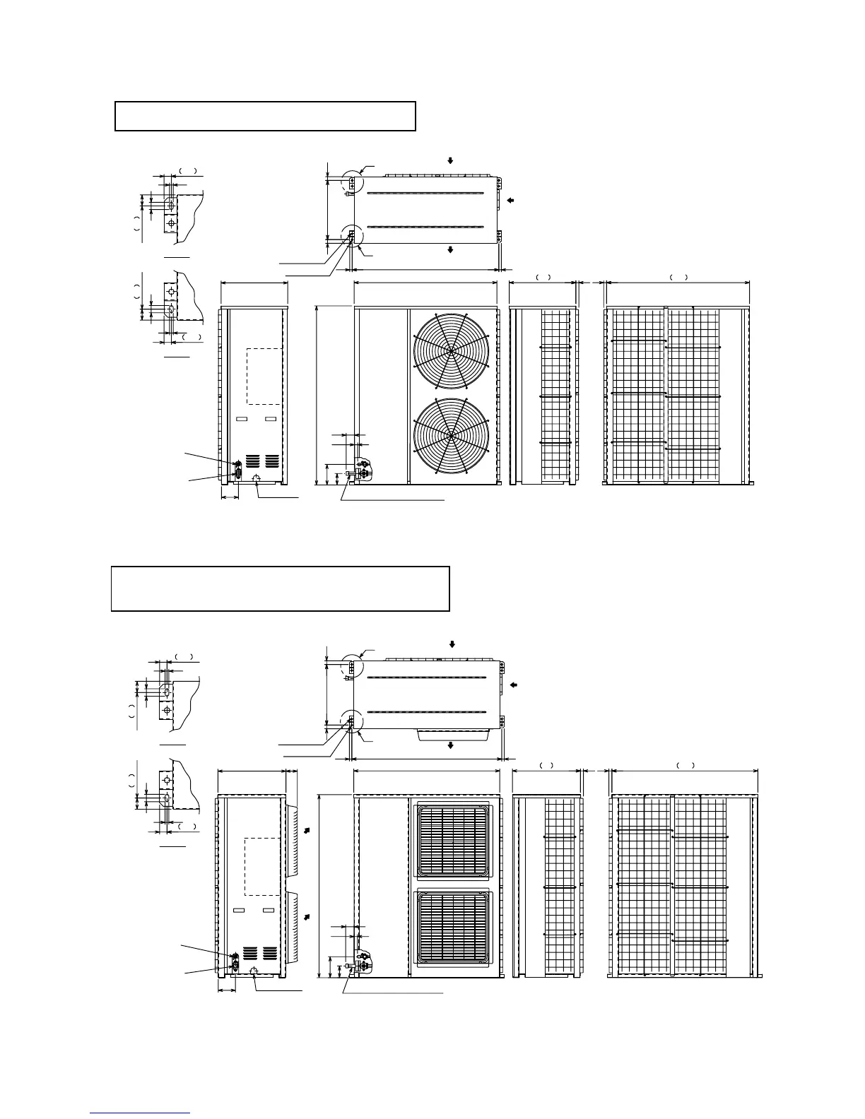
4-ø15 HOLES
(HUNGING)
4-10X20 HOLES
WIRING HOLE
CONTROL
BOX
ACCESSORY PIPE (WITH FLANGE)
REFRAIGERANT PIPE
<FIELD SUPPLY>
7,8MYF:ø25.4(1 FLANGE)
10MYF:ø28.6(1-1/8 FLANGE)
REFRAIGERANT PIPE
<FIELD SUPPLY>
ø15.88(5/8 FLARE)
AIR INLET
AIR INLET
AIR OUTLET
DETAIL B
DETAIL A
10
20
20
1212
30
490
1212
10
20
490
30
20
A
B
142
1180550
550
30490(BOLT PITCH)30
20 201212(BOLT PITCH)
170
95
1480
30
66
1180
(FOR MOUNTING
ANCHOR BOLT M8)
<FIELD SUPPLY>
PUH-7,8,10MYF (Standard)
2020
4-ø15 HOLES
(HUNGING)
4-10X20 HOLES
WIRING HOLE
CONTROL
BOX
NOTE.THIS DRAWING IS SHOWN AT UPWARD BLOW
AIR
OUTLET
AIR
OUTLET
ACCESSORY PIPE (WITH FLANGE)
REFRAIGERANT PIPE
<FIELD SUPPLY>
7,8MYF:ø25.4(1 FLANGE)
10MYF:ø28.6(1-1/8 FLANGE)
REFRAIGERANT PIPE
<FIELD SUPPLY>
ø15.88(5/8 FLARE)
AIR INLET
AIR INLET
AIR OUTLET
DETAIL B
DETAIL A
10
20
20
1212
30
490
1212
10
20
490
30
20
A
B
92
142
1180550
550
30490(BOLT PITCH)30
20 201212(BOLT PITCH)
170
95
1480
30
66
1180
(FOR MOUNTING
ANCHOR BOLT M8)
<FIELD SUPPLY>
PUH-7,8,10MYF
(with Air outlet guide <option
1
>)
1 : Outdoor unit with air outlet guide is special
order in some customers.

Related product manuals