EasyManua.ls Logo

Mitsubishi Q02HCPU - Page 154

Mitsubishi Q02HCPU
692 pages
Print Icon
To Next Page IconTo Next Page
To Next Page IconTo Next Page
To Previous Page IconTo Previous Page
To Previous Page IconTo Previous Page
Loading...
4
- 6
4.3 Installing Extension Base Units and Setting the Number of Stages
4
I/O NUMBER ASSIGNMENT
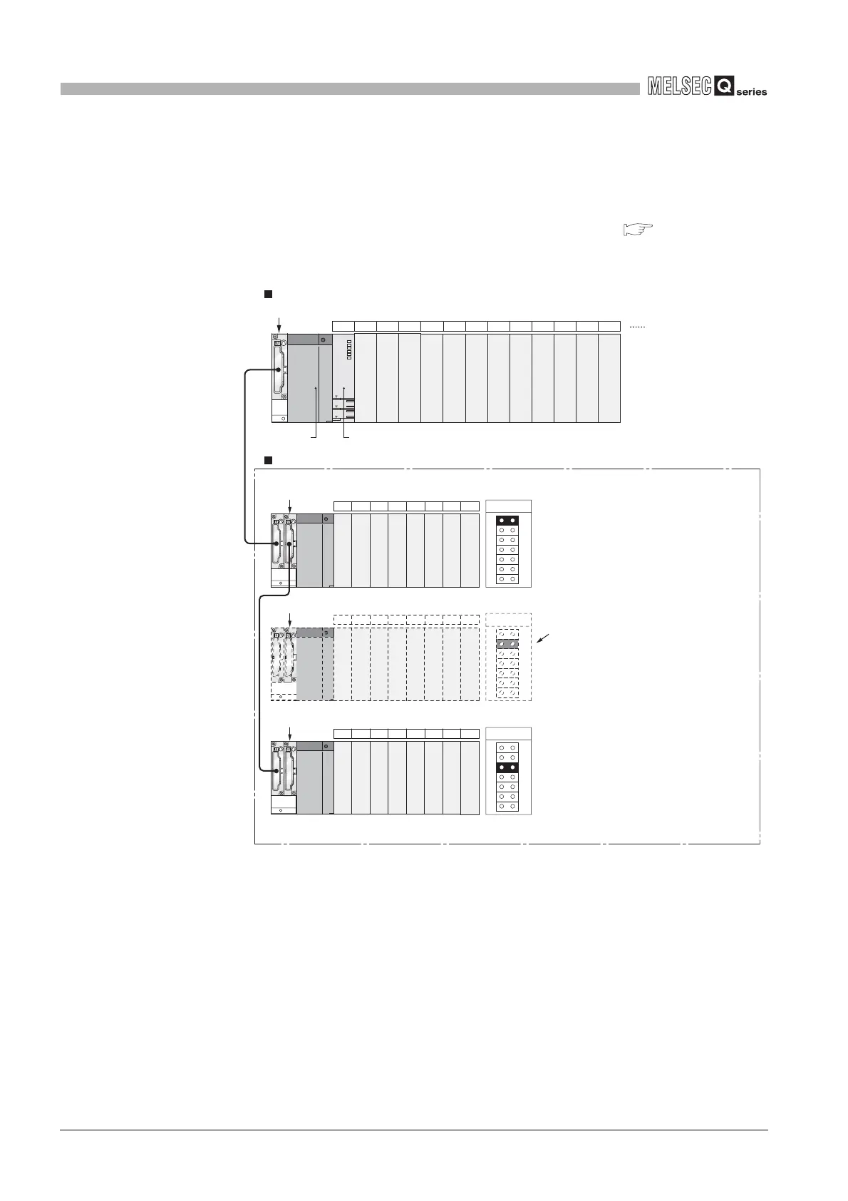
(2) Precautions for extension stage number setting
(a) Extension stage number setting order
Set the extension stage numbers consecutively.
If any extension stage number is skipped in the auto mode( Section 4.4(1))of
base unit assignment, 0 slot is set to the skipped stage and the number of empty
slots does not increase.
Diagram 4.5 Number of slots when extension stage number is skipped
Power supply
module
CPU module
Extension 1
Main base unit
Slot number
CPU 0 1 2 3 4 5 6 7 8 9 10 11
12 13 14 15 16 17 18 19
Extension 2
00000000
Extension 3
20 21 22 23 24 25 26 27
Extension base unit
Skipped
stage number
Q312B
Q68B
Q68B
Q68B

Table of Contents

Other manuals for Mitsubishi Q02HCPU

Related product manuals