EasyManua.ls Logo

Mitsubishi SCM40ZS-S - Page 16

Mitsubishi SCM40ZS-S
335 pages
Print Icon
To Next Page IconTo Next Page
To Next Page IconTo Next Page
To Previous Page IconTo Previous Page
To Previous Page IconTo Previous Page
Loading...
-
15
-
'16 • SCM-T-199
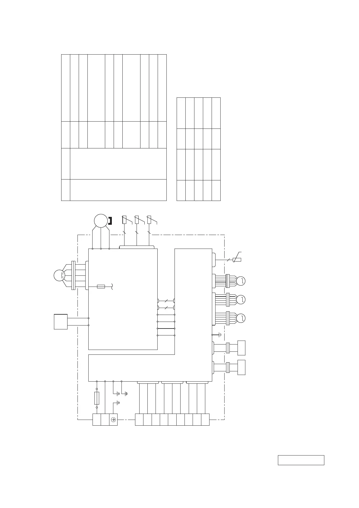
Model SCM50ZS-S
EEV A,EEV B
L
Compressor motor
Reactor
Tho-A
Tho-D
Heat exchanger temp. sensor
Outdoor air temp. sensor
Discharge pipe temp. sensor
CM
Tho-R
Connector
20S
4 Way valvecoil
Suction pipe temp. sensor
Tho-S
FMo
Fan motor
outdoor unit
BK
BR
Black
Brown
BL
YE
Blue
Yellow
RD
YG
Red
YellowGreen
WH
White
OR
Orange
EEV
S
R
S-2
BK
WH
WH
S-1
CNSUB
CNMAIN
S
R
BK
WH
IN
IN
SO
R
O
CN20S
G2
YG
C-2
RD
C-1
CN20V
CN20V
G1
YG
G
YG
CNEEV1
CNEEV3
CNA
CNB
CNC
N
L
EEV EEV
YG
WH
BK
UNIT A
UNIT B
UNIT C
M
POWER
SOURCE
WH
RD BL
20S
HEATER
WH RD
CNHEAT
BK
WH
RD
BK
WH
BR
BK
WH
BL
Tho-D
Tho-A
Tho-R
2
t
t
t
Tho-S
CNTH
t
FMo
M
T2
T1
L
OR
YE
CNTH
CNFAN
T 1A L 250V
F3
PCB 2SUB
PCB 1MAIN
250V 15A
FUSE
250V 20A
1
3
2
1
3
2
1
3
2
EEV C
BLOCK 1
A B C
2
2
2
5
2
BLOCK 2
FUSE
CN20S
CNEEV1
CNEEV3
CNA
CNB
CNC
CNHEAT
CNTH
CNMAIN
CN20V
CNSUB
CNFAN
MS
3
BK
WH
RD
V
W
U
CM
TERMINAL
TERMINAL
M
M
Electric expansion valvecoil
Item Description
Item Description
Mark Color Mark Color
Color marks
Meaning of marks
RWC000Z295

Table of Contents

Related product manuals