EasyManua.ls Logo

Mitsubishi SRC92ZL-S - Electrical Wiring Work; Wiring Procedures and Precautions

Mitsubishi SRC92ZL-S
92 pages
Print Icon
To Next Page IconTo Next Page
To Next Page IconTo Next Page
To Previous Page IconTo Previous Page
To Previous Page IconTo Previous Page
Loading...
-
29
-
'12 • SRK-T-130
Wires for connecting indoor
and outdoor units
Exterior tape
Gas piping
Insulation
Liquid piping
Band (accessory)
Pipe cover (accessory)
8) Heating and condensation prevention
Take care so that installed pipes may not touch components within a unit.
If touching with an internal component, it will generate abnormal sounds and/or vibrations.
4) On-site piping work
IMPORTANT
How to remove the service panel
First remove the five screws ( mark) of the service panel and push it down into
the direction of the arrow mark and then remove it by pulling it toward you.
CAUTION
Do not apply force beyond proper fastening torque in tightening the flare nut.
Tightening angle ( )Tightening torque (N·m)
ø6.35 (1/4")
ø15.88 (5/8")
Recommended length of a tool handle (mm)Operation valve size (mm)
5) Air tightness test
Gas side
operation valve
Check joint
P
r
e
s
s
u
r
i
z
e
Close
Outdoor unit
Indoor unit
<Work flow>
6) Evacuation
Pay attention to the following points in addition to the above for the R410A and compatible machines.
Air tightness test completed
Fill refrigerant
Vacuum gauge check
Vacuuming completed
Vacuuming begins
Do not hold the valve cap area with a spanner.
3) Refrigerant pipe wall thickness and material
NOTE
*Phosphorus deoxidized seamless copper pipe ICS 23.040.15, ICS 77.150.30
ø6.35
0.8
O-type pipe
ø15.88
1.0
O-type pipe
Pipe diameter [mm]
Minimum pipe wall thickness [mm]
Pipe material*
Select refrigerant pipes of the table shown on the right wall thickness and
material as specified for each pipe size.
Although outdoor and indoor units themselves have been tested for air tightness at the factory, check the connecting pipes after the installation work for air tightness
from the operation valves check joint equipped on the outdoor unit side. While conducting a test, keep the operation valve shut all the time.
a) Raise the pressure to 0.5MPa, and then stop. Leave it for five minutes to see if the pressure drops.
b) Then raise the pressure to 1.5MPa, and stop. Leave it for five more minutes to see if the pressure drops.
c) Then raise the pressure to the specified level (4.15MPa), and record the ambient temperature and the pressure.
d) If no pressure drop is observed with an installation pressurized to the specified level and left for about one day, it is acceptable. When the ambient temperature fall
1 C, the pressure also fall approximately 0.01MPa. The pressure, if changed, should be compensated for.
e) If a pressure drop is observed in checking e) and a) d), a leak exists somewhere. Find a leak by applying bubble test liquid to welded parts and flare joints and
repair it. After repair, conduct an air tightness test again.
In conducting an air tightness test, use nitrogen gas and pressurize the system with nitrogen gas from the gas side. Do not use a medium other than nitrogen gas
under any circumstances.
To prevent a different oil from entering, assign dedicated tools, etc. to each refrigerant type. Under no circumstances must a
gauge manifold and a charge hose in particular be shared with other refrigerant types (R22, R407C, etc.).
Use a counterflow prevention adapter to prevent vacuum pump oil from entering the refrigerant system.
Put down the refrigerant volume calculated from the pipe length onto the caution label attached
on the service panel.
This unit contains factory charged refrigerant covering 15m of refrigerant piping and additional refrigerant
charge on the installation site is not required for an installation with up to 15m refrigerant piping.
When refrigerant piping exceeds 15m, additionally charge an amount calculated from the pipe length and
the above table for the portion in excess of 15m.
* When an additional charge volume calculation result is negative, it is not necessary to charge refrigerant
additionally.
For an installation measuring 15m or shorter in pipe length, please charge the refrigerant volume charged
for shipment at the factory, when you recharge refrigerant after servicing etc.
Fix both liquid and gas operation valves at the valve main bodies as illustrated on the right, and then fasten them,
applying appropriate fastening torque.
Select pipes having a wall thickness larger than the specified
minimum pipe thickness.
A
B
Flared pipe end : A (mm)
ø6.35
ø15.88
Copper
pipe outer
diameter
0
A
04
9.1
19.7
ø6.35
ø15.88
Copper
pipe outer
diameter
0~ 0.5 1.0~ 1.5
Copper pipe protrusion for flaring : B (mm)
In the case of a rigid (clutch) type
With an R410A tool
With a conventional tool
14~ 18
68~82
45~ 60
15~20
150
300
Use a torque wrench. If a torque wrench is not
available, fasten the flare nut manually first and then
tighten it further, using the left table as a guide.
1
2
Run the vacuum pump for at least one hour after the vacuum
gauge shows 0.1MPa or lower. (76cmHg or lower)
When the system has remaining moisture
inside or a leaky point, the vacuum gauge
indicator will rise.
Check the system for a leaky point and
then draw air to create a vacuum again.
Confirm that the vacuum gauge indicator does not rise even if
the system is left for one hour or more.
(1) Dress refrigerant pipes (both gas and liquid pipes) for heat insulation and prevention of dew condensation.
Improper heat insulation/anti-dew dressing can result in a water leak or dripping causing damage to household effects, etc.
(2) Use a heat insulating material that can withstand 120 C or a higher temperature. Poor heat insulating capacity can cause heat insulation problems or cable
deterioration.
All gas pipes must be securely heat insulated in order to prevent damage from dripping water that comes from the condensation formed on them during a cooling
operation or personal injury from burns because their surface can reach quite a high temperature due to discharged gas flowing inside during a heating operation.
Wrap indoor units flare joints with heat insulating parts (pipe cover) for heat insulation (both gas and liquid pipes).
Give heat insulation to both gas and liquid side pipes. Bundle a heat insulating material and a pipe tightly together so that no gaps may be left between them and
wrap them together with a connecting cable by a dressing tape.
Both gas and liquid pipes need to be dressed with 20mm or thicker heat insulation materials above the ceiling where relative humidity exceeds 70%.
(1) Calculate a required refrigerant charge volume from the following table.
Since R410A refrigerant must be charged in the liquid phase, you should charge it, keeping the container
cylinder upside down or using a refrigerant cylinder equipped with a siphon tube.
Charge refrigerant always from the liquid side service port with the operation valve shut. When you find it
difficult to charge a required amount, fully open the outdoor unit valves on both liquid and gas sides and
charge refrigerant from the gas (suction) side service port, while running the unit in the cooling mode. In
doing so, care must be taken so that refrigerant may be discharged from the cylinder in the liquid phase
all the time. When the cylinder valve is throttled down or a dedicated conversion tool to change liquid
phase refrigerant into mist is used to protect the compressor, however, adjust charge conditions so that
refrigerant will gasify upon entering the unit.
In charging refrigerant, always charge a calculated volume by using a scale to measure the charge
volume.
When refrigerant is charged with the unit being run, complete a charge operation within 30minutes.
Running the unit with an insufficient quantity of refrigerant for a long time can cause a compressor failure.
(2) Charging refrigerant
Formula to calculate the volume of additional refrigerant required
7) Additional refrigerant charge
Additional charge volume (kg) = { Main length (m) Factory charged volume 15 (m) } x 0.025 (kg/m)
0.025 3.15 15
NOTE
Additional charge volume (kg)
per meter of refrigerant piping
(liquid pipe ø6.35)
Refrigerant volume charged
for shipment at the factory
(kg)
Installations pipe length (m)
covered without additional
refrigerant charge
3. DRAIN PIPING WORK
RCR012A101
Execute drain piping by using a drain elbow and drain
grommets supplied separately as optional parts, where
water drained from the outdoor unit is a problem.
Water may drip where there is a larger amount of drain
water. Seal around the drain elbow and drain
grommets with putty or adequate caulking material.
Condensed water may flow out from vicinity of
operation valve or connected pipes.
Where you are likely to have several days of sub-zero
temperatures in a row, do not use a drain elbow and
drain grommets. (There is a risk of drain water freezing
inside and blocking the drain.)
When condensed water needs to be led to a drain, etc., install
the unit on a flat base (supplied separately as an optional part)
or concrete blocks.
Then, please secure space for the drain elbow and the drain
hose.
4. ELECTRICAL WIRING WORK For details of electrical cabling, refer to the indoor unit installation manual.
CAUTION
Always use an earth leakage circuit breaker designed for inverter circuits to
prevent a faulty operation.
Interconnecting and
grounding wires
(minimum)
Switch breaker
Over current protector
rated capacity
Power source
(minimum)
20A, 30mA,
0.1sec or less
30A 20A 2.5mm
2
1.5mm
2
X 4
Earth leakage breakerPhase
Single-phase
INSTALLATION TEST CHECK POINTS
After installation
Check the following points again after completion of the installation, and before turning on the power. Conduct a test run again and ensure that the unit operates properly.
Explain to the customer how to use the unit and how to take care of the unit following the installation manual.
In case of faulty wiring connection, the indoor unit stops,
and then the run lamp turns on and the timer lamp blinks.
Use cables for interconnection wiring to avoid loosening of the wires.
CENELEC code for cables Required field cables.
H
05
R
N
R
4or5
G
1.5
Harmonized cable type
300/500 volts
Natural-and/or synth. rubber wire insulation
Polychloroprene rubber conductors insulation
Stranded core
Number of conductors
One conductor of the cable is the earth conductor
(yellow/green)
Section of copper wire (mm
2
)
Power cables and connecting wires are securely fixed to the terminal block.
The power supply voltage is correct as the rating.
The drain hose is fixed securely.
Operation valve is fully open.
No gas leaks from the joints of the operation valve.
The pipe joints for indoor and outdoor pipes have been insulated.
The reverse flow check cap is attached.
The cover of the pipe cover (A) faces downward to prevent rain from entering.
Gaps are properly sealed between the pipe covers (A) (B) and the wall surface / pipes.
The screw of the side cover is tightened securely.
H05RNR4G1.5 (Example) or 245IEC57
Electrical installation work must be performed by an electrical installation service provider qualified by a power provider of the country.
Electrical installation work must be executed according to the technical standards and other regulations applicable to electrical installations in the country.
Do not use any supply cord lighter than one specified in parentheses for each type below.
braided cord (code designation 60245 IEC 51)
ordinary tough rubber sheathed cord (code designation 60245 IEC 53)
flat twin tinsel cord (code designation 60227 IEC 41)
Use polychloroprene sheathed flexible cord (code designation 60245 IEC57) for supply cords of parts of appliances for outdoor use.
Ground the unit. Do not connect the grounding wire to a gas pipe, water pipe, lightning rod or telephone grounding wire.
If improperly grounded, an electric shock or malfunction may result.
A grounding wire must be connected before connecting the power cable. Provide a grounding wire longer than the power cable.
The installation of an impulse withstanding type earth leakage breaker is necessary. A failure to install an earth leakage breaker can result in an accident
such as an electric shock or a fire.
Do not turn on the power until the electrical work is completed.
Do not use a condensive capacitor for power factor improvement under any circumstances. (It dose not improve power factor, while it can cause an
abnormal overheat accident)
For power supply cables, use conduits.
Do not lay electronic control cables (remote control and signaling wires) and other cables together outside the unit. Laying them together can result in
the malfunctioning or a failure of the unit due to electric noises.
Fasten cables so that may not touch the piping, etc.
When cables are connected, make sure that all electrical components within the electrical component box are free of loose connector coupling or
terminal connection and then attach the cover securely. (Improper cover attachment can result in malfunctioning or a failure of the unit, if water
penetrates into the box.)
Never use a shield cable.
Power cable, indoor-outdoor connecting wires
Always perform grounding system installation work with the power cord unplugged.
Connect a pair bearing a common terminal number with an indoor-outdoor connecting wire.
In cabling, fasten cables securely with cable clamps so that no external force may work on terminal connections.
Grounding terminals are provided in the control box.
The specifications shown in the above table are for units without heaters. For units with heaters, refer to the
installation instructions or the construction instructions of the indoor unit.
Switchgear or Circuit breaker capacity which is calculated from MAX. over current should be chosen along the
regulations in each country.
The cable specifications are based on the assumption that a metal or plastic conduit is used with no more than
three cables contained in a conduit and a voltage drop is 2%. For an installation falling outside of these
conditions, please follow the internal cabling regulations. Adapt it to the regulation in effect in each country.
Switchgear or Circuit Breaker
CAUTION
1 2/N 3
1 2 3
Indoor unit
Outdoor unit
When wire length
exceeds
30m, use
2.5mm
2
wires.
LN
Safety
breaker
20A
Earth
leakage
circuit
breaker
Earth
Power
supply
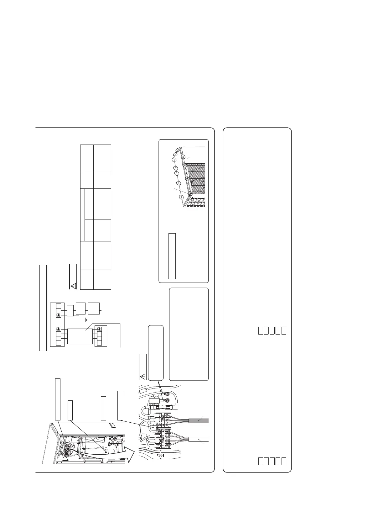
When change the Printed circuit board, please take off the top panel.
Clearance
The pipe can be laid in any of the following directions: side right, front, rear and downward.
Remove a knock-out plate provided on the pipe penetration to open a minimum necessary area and attach an
edging material supplied as an accessory by cutting it to an appropriate length before laying a pipe.
Carry out the on site piping work with the operation valve fully closed.
Give sufficient protection to a pipe end (compressed and blazed, or with an adhesive tape) so that water or
foreign matters may not enter the piping.
Bend a pipe to a radius as large as practical.(R100
~
R150) Do not bend a pipe repeatedly to correct its form.
Flare connection is used between the unit and refrigerant pipe. Flare a pipe after engaging a flare nut onto it.
Flare dimensions for R410A are different from those for conventional R407C. Although we recommend the
use of flaring tools designed specifically for R410A, conventional flaring tools can also be used by adjusting
the measurement of protrusion B with a protrusion control gauge.
The pipe should be anchored every 1.5m or less to isolate the vibration.
Tighten a flare joint securely with a double spanner.
Catch
For downward connection
For side right connection
For front connection
For rear connection
Edging
(For knock-out hole protection)
Charge hose
(Designed specifically for R410A)
Compound pressure gauge
Pressure gauge
Gauge manifold
(Designed specifically for R410A)
Handle Hi
Vacuum pump
Vacuum pump adapter
(Anti-reverse flow type)
(Designed specifically for R410A)
Charge hose
(Designed specifically for R410A)
Check joint
-0.1MPa
(-76cmHg)
Handle Lo
Operation valve
(two-way valve)
Operation valve cap
Operation valve cap
tightening torque (N·m)
Check joint blind nut
tightening torque (N·m)
ø6.35 (1/4")
ø15.88 (5/8")
20~ 30
30~40
10~ 12
Operation valve size
(mm)
Securely tighten the operation valve cap and the check joint blind nut after adjustment.
Operation valve
(three-way valve)
Power cable
Please connect the earthed line of
indoor and outdoor connecting wire
to a bracket part of the illustration.
Indoor - Outdoor
connecting wire
CAUTION
How to remove the top panel
Please remove the screws of the top panel.
Wiring diagram
Cable clamp
It holds cables in place and protect the
terminal connection from external force.
This clamp is for the cable in the outside
diameter 9~15mm.
Please adjust it when not suitable.
It has stuck on the lid of a control box.
Power supply terminal block
EARTHING WORK
Earth work shall be carried out without fail in order to
prevent electric shock and noise generation.
The connection of the earth cable to the following
substances causes dangerous failures, therefore it shall
never be done. (City water pipe, Town gas pipe, TV antenna,
lightning conductor, telephoneline, etc.)
Grounding terminal
Please be sure to carry out grounding
work.
Screw x11
Drain elbow
Grommet
Grommet
Drain hose
(To be procured on the installers part)

Related product manuals