EasyManua.ls Logo

Mod Con 300 - Page 10

Mod Con 300
76 pages
Print Icon
To Next Page IconTo Next Page
To Next Page IconTo Next Page
To Previous Page IconTo Previous Page
To Previous Page IconTo Previous Page
Loading...
GAS-FIRED BOILER Boiler Manual
9
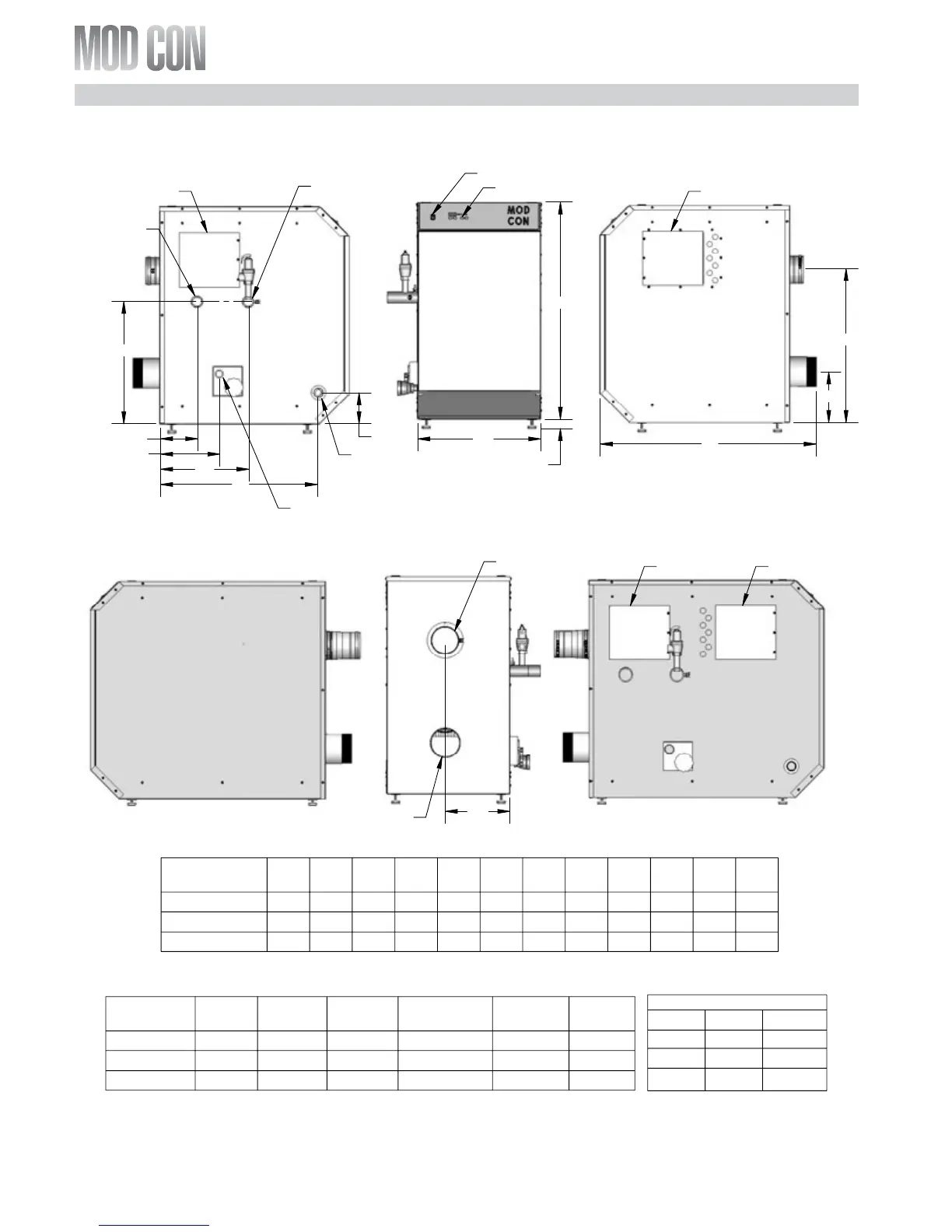
Figure 2-1
DIMENSIONS
LP-205-C Rev. 5/6/08
$
)
%
'
(
&
&2/':$7(5
,1/(7
+27:$7(5
287/(7
&21'(16$7(
',6&+$5*(
*$6/,1(
$&&(663$1(/
/
.
-
(/(&75,&$/%2;
$&&(663$1(/
(/(&75,&$/%2;
+
*
/(*6$'-867

32:(56:,7&+
',63/$<3$1(/
0
(;+$867
$,5,17$.(
3/($6(127($//',0(16,216$5($3352;,0$7($1'+(,*+76'2127,1&/8'($'-867$%/(/(*6
)5217
$//02'(/6
/()76,'(
02'&21
5,*+76,'(
02'&21
5,*+76,'(
02'&21
/()76,'(
02'&21
5($5
$//02'(/6
02'(/
$
%
&
'
(
)
*
+
-
.
/
0
02'&21
           
02'&21
           
02'&21
           
02'(/
%78+5
,1387
/2:),5(
%78+5
,1387
+,*+),5(
'2(
+($7,1*
&$3$&,7<
6833/<5(7851
&211(&7,21
*$6
&211(&7,21
9(17
',$0(7(5
02'&21

 



02'&21   



02'&21   
  
)$163(('6
+,*+
/2:
,*1,7,21
  
  
  

Table of Contents