EasyManua.ls Logo

Modine Manufacturing MPR20 - Page 47

Modine Manufacturing MPR20
68 pages
Print Icon
To Next Page IconTo Next Page
To Next Page IconTo Next Page
To Previous Page IconTo Previous Page
To Previous Page IconTo Previous Page
Loading...
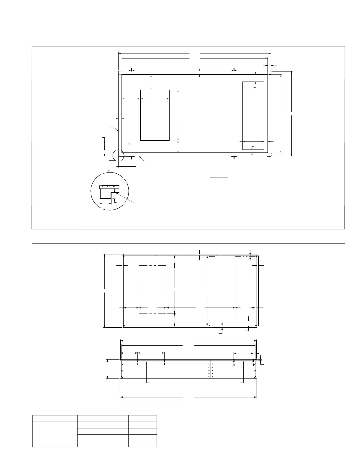
47MCP15-500.9
DIMENSIONS - D-CABINET SIZE UNIT BASE / ROOF CURB
172.00
92.75
180.00
4.00
100.75
21.89 34.24
60.12
18.26
14.38
BASE ASSEMBLY AS
VIEWED FROM BOT
TOM
LOW VOLT CONTROL
PANEL ON THIS SIDE
INSIDE BASE ASSEMBLY DETAIL
VIEW AS VIEWED FROM SIDE
LANDING AREA
FOR ROOF CURB
4.00
2.11
8.52
3.52
4.3925.00
RETURN AIR
OPENING (IF
SELECTED)
SUPPLY AIR
OPENING
4.00
4.00
HIGH VOLT POWER
CABINET THIS SIDE
AREA OF BASE THAT
CAN BE DRILLED FOR
ELECTRICAL ENTRY
8.00
10.00
9.00 6.00
Figure 47.1 - Unit Base Dimensions (inches)
Figure 47.2 - Roof Curb Dimensions (inches)
91.75
171.50
SUPPLY AIR
OPENING
LOCATION
60.12
34.2519.64
88.25
INSIDE
1.75
1.75
1.75
1.75
171.00
167.50
INSIDE
1.12
14.0 OR 24.0
SEE SCHEDULE
16.00
6.25
25.00 2.14
1.25
86.48
21.81 33.40
RETURN AIR DUCT
CONNECTOR ACCESSORY
(OPTIONAL)
SUPPLY AIR DUCT
CONNECTOR ACCESSORY
(OPTIONAL)
4.3124.15
12.12
RETURN AIR
OPENING (IF
SELECTED)
CURB ASSEMBLY AS
VIEWED FROM TOP
Table 47.3 - Roof Curb Weight (approx) - lbs.
Section Description Weight
Roof Curb
14” - Insulated 423
14” - Uninsulated 430
24” - Insulated 535
24” - Uninsulated 547

Related product manuals