EasyManua.ls Logo

Monaco C-99A - Page 49

Default Icon
58 pages
Print Icon
To Next Page IconTo Next Page
To Next Page IconTo Next Page
To Previous Page IconTo Previous Page
To Previous Page IconTo Previous Page
Loading...
#
Mi-
'
/
-J
'
II
[I1
--..=..-..-
I
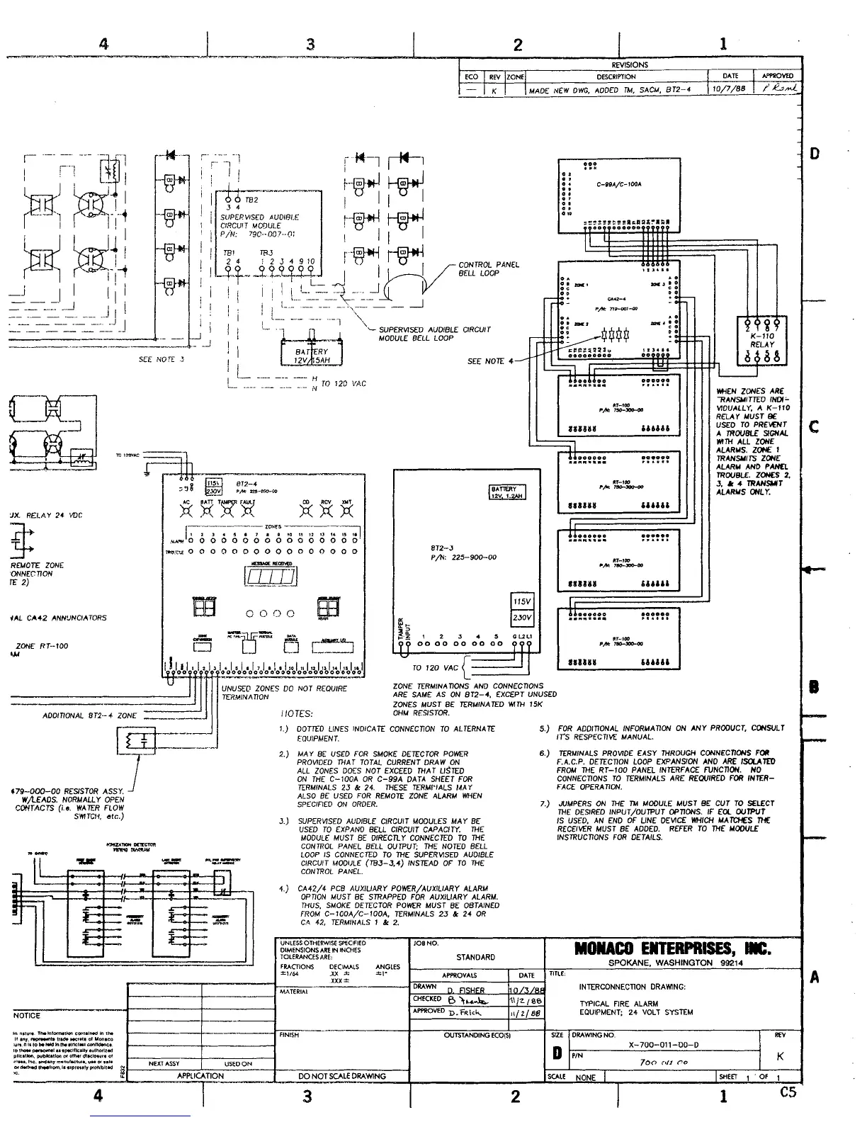
REVISIONS
SEE NOTE
4-
WEN AANSYlTlED ZONES ARE INOIL
MOUALLY. A
K-110
RELAY MUST
BE
USED TO PREKNT
A
TROUBLE
SCUM
Rl?l
ALL ZONE
ALARMS. ZOClE 1
lRANSYlrS ZONE
ALARM AND
PAmL
TRWBLE. ZOmS
2.
3,
&
4
TRANSWT
ALARMS ONLY.
*PPPOYED
3X.
RELAY
24
MC
a
-
I
K
I
(MADE NEW OWC. AOOEO
TM.
SACM. BT2-4
[
10/7/BB
]
f
&nu
DATE
ECO
;,"
:
1
2
3
4
5
CLZLI
00 00 00 00 00
lo
120 "Ac
(-
JAL CA42 ANNiJNCIATORS
REV
ZONE RT-100
w
UNUSED ZONES 00 NOT REQUIRE
TERMINATIOEI
ZONE
C
ZONE TERMINATIONS AND CONNECTIONS
ARE SAME AS ON BT2-4. EXCEPT UNUSED
ZONES MUST BE TERMINATED
WlTH 15K
OHM RESISTOR.
DESCRIPTION
ADDITIONAL BT2-
4
ZONE
CONNECTION ALTERNATE
5.)
FOR ADDITIONAL INFORMATION ON ANY PRODUCT,
CONSULT
ITS
RESPECTIVE MANUAL.
1.)
DOTTED LINES INDICATE
FOUIPMEN T.
2.)
MAY BE USEO FOR SMOKE DETECTOR POWER
PROMOED THAT TOTAL CURRENT DRAW ON
ALL ZONES
DOES NOT EXCEED THAT LISTEO
ON THE C-100A OR C-99A DATA SHEET FOR
TERMINALS 23
&
24.
THESE TERMI'IALS MAY
ALSO BE USEO FOR REMOTE ZONE ALARM MEN
6.)
TERMINALS PROWOE EASY THROUGH CONNECTIONS
FOll
F.A.C.P. DETECTION LOOP EXFANSION AND ARE ISOUTED
FROM THE RT-100 PANEL INTERFACE FVNCTION. NO
CONNECTIONS TO TERMINALS ARE REWIRED
FM INTER-
FACE OPERATION.
(79-000-00 RESISTOR ASSY.
W/tEADS. NORMALLY OPEN
COIITACTS (1.6. WATER FLOW
SHITCH,
atc.)
7.)
JUMPERS
ON
mE
M
MODULE MUST
BE
CUT
TO
SELECT
THE
DESIRED
INPUT/OUTPUT
wnom
IF
EOL
WTWT
IS USEO. AN EN0 OF LINE OEMCE WICH MATCMS
ME
SPECIFIED ON ORDER.
3.)
SUPERMSEO AUDIBLE CIRCUIT MODULES MAY BE
USEO TO EXPAND BELL CIRCUIT CAPACITY THE
INSFUCTIONS FOR DETAILS.
CONTROL PANEL
I.)
CA42/4 PCB AUXILIARY POWER/AUXILIARY ALARM
OPTION MUST BE STRAPPED FOR AUXILIARY ALARM.
mus.
SMOKE
DETECTOR
POWER
MUST BE
OBTAINED
FROM C-10OA/C-IOOA. TERMINALS 23
&
24
OR
C.4 42, TERMINALS 1
&
2.
UNLESS OTHEWlS WClFlED JOB NO.
DIMENSIONSARF IN INCHES
TOLERANCESARE: STANDARD
MONACO
ENTERBRISLS,
#1C.
FRACTIONS DECIhULS ANGLES
SPOKANE. WASHINGTON
99214
-
fl1M
.U
*
-1.
APPP~YAI~
I
~&TF
TITLE:
XXX
f
. . . . .
.-
.
. .-
-
WTERIAI
DRAWN
lO/S/as
INTERCONNECTlON DRAWING:
CHECKED
6
>&
?\
jz
ae
TYPICAL FIRE ALARM
A~MD~.F~lch III~IRR EQUIPMENT:
24
VOLT SYSTEM
I
-
L
NOTICE
1
I
FINISH OUTSTANDlNGECOlSl SIZE DRAWNGNO
REV
X-700-011-DO-D
D
.PIN
700
roll
00
K
DO NOT SCALE DRAWNG SCALE NONE
1
I
SHLtT
1
OF 1