EasyManua.ls Logo

Monogram ZIF36N RH - Page 33

Monogram ZIF36N RH
44 pages
Print Icon
To Next Page IconTo Next Page
To Next Page IconTo Next Page
To Previous Page IconTo Previous Page
To Previous Page IconTo Previous Page
Loading...
33
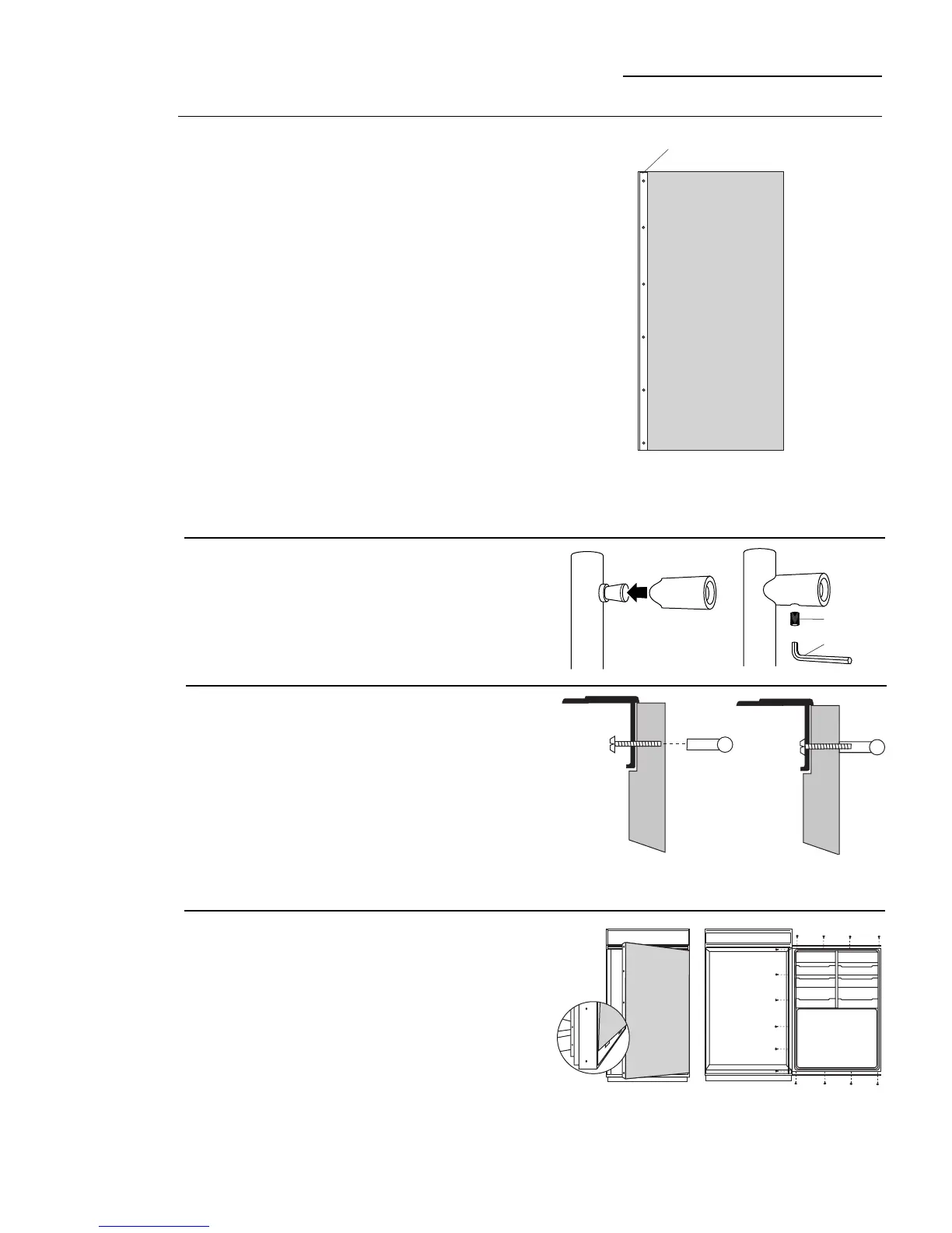
ZKHTRSS1 for 3/4" Panel
Tubular Stainless Steel Handle
Step 1
Match Handle
Extrusion
to Panel
Cut a piece of corrugated to use as a pad to protect
the panel finish. Additional material may be required
to protect flooring when drilling.
Place custom panel on the pad, appearance side
down.
Select handle extrusion for your model, left or right
side extrusion.
• Place extrusion against the handle side of the panel.
Align the extrusion evenly with the top and bottom of
the panel.
Tape the extrusion to the panel to prevent movement.
Center punch and drill 1/8" pilot holes through the
holes in the extrusion and into the panel.
• Turn panel over. On the appearance side, use 9/32" bit
to enlarge clearance hole.
Step 2
Install
Standoffs
onto Handles
• Place a handle standoff on each attachment post on
the handle. Position the screw hole on the standoff
to point to the floor.
• Install set screws into the bottom of each standoff,
using the Allen wrench provided. The standoff
should be tight against the handle.
Note:
Hole locations must be exact to accept handle
standoff and handle assembly.
Step 3
Install
mounting
screws
and handles
• Start mounting screws through the extrusion and just
through the custom panel.
• Stand panel up on the hinge side and hold to access
the appearance side. Place handle against mounting
screws on the appearance side, drive top screw from
the back of the extrusion partially into the standoff.
• Drive bottom screw partially into the standoff, and
then, drive remaining screws partially into standoffs.
Alternate back to the top, driving screws until the
handle is tight against the door.
Step 4
Install
Assembled
Panels
It is best that 2 people perform this step.
• Place assembled panel onto the bottom door trim
with support bracket tabs inserted into slots.
• Push and hold the panel back against the steel door
with door handle extrustion flush to the handle side
of the door.
Reinstall original screws into the door extrusion.
Open the door fully to stop.
Install screws at the top, and hinge side.
Align ExtrusionEven
With Panel
Back Side
Custom Panel
Screw
Allen Wrench

Related product manuals