EasyManua.ls Logo

Monogram ZISB42DY - 3;4 Thick Panels with ZKT42, ZKHT1 And;Or ZWCD1 Trim Kits

Monogram ZISB42DY
40 pages
Print Icon
To Next Page IconTo Next Page
To Next Page IconTo Next Page
To Previous Page IconTo Previous Page
To Previous Page IconTo Previous Page
Loading...
13
ZISW42DY (white dispenser)
ZISB42DY (black dispenser)
42" Built-In Refrigerator
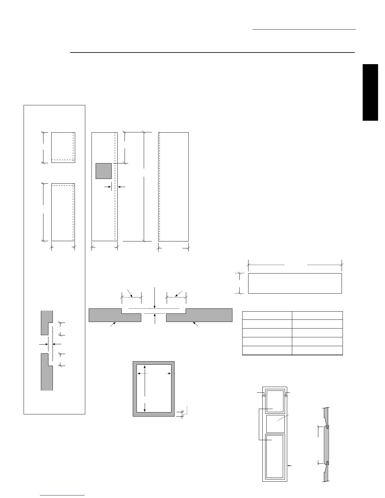
ZKT42 and ZKHT1 installed together provides for the
installation of 3/4" custom door and grille panels, using a
custom handle. Cut panels to size, rout the handle side
of the panels as shown below and install (see detail C).
For standard dispenser trim: Cut panels to size, rout the
handle side of the panels as shown in detail C, rout the
bottom of the upper freezer panel and the top of the
lower freezer panel to allow placement of support
brackets (see detail B) and install.
For custom dispenser trim ZWCD1 kit must be used: Cut
panels to size, refer to detail C for dispenser cutout
routing instructions and install. When a raised panel
design is used, custom width stiles and custom middle
rail is required. A 13-1/2" wide middle rail must be used
because the custom collar trim must be located within
the raised portion of the panel. This area must be 3/4"
thick. See Detail D for raised panel.
When using the standard full-width dispenser trim, the
length of the custom handle, top to bottom cannot
exceed 11-3/4". Locate the handle a minimum of 3/4" and
a maximum of 1-1/2" from the edge of the panel. There
are no length restrictions on handles for models using a
custom collar dispenser trim (ZWCD1).
Custom Door Panel Dimensions
Using Trim Kit ZKT42
3/4" thick panel with custom handle
and/or ZWCD1 custom collar trim
3/32"
1"
1"
Upper
Freezer
Panel
Lower
Freezer
Panel
Panel
Face
Detail A
16 11/16"
37"
2 9/16"
67 15/16"
15 5/16"
25 5/16"
17 11/16"
Fresh Food
Panel
Freezer Panel
Standard
Dispenser
Freezer Panel
Custom
Dispenser
15 5/16"
Detail B
Rout panels to specification below on
the handle side of each panel
1 13/16"
1 13/16"
1/4"
max
Freezer Door FaceFreezer Door Face
Fresh Food Door Face
p
9 7/16"
12 5/16"
7/8"
Wide
Rout
The Cutout is 9 7/16" wide
by 12 5/16" high. 3/4" panels
must be routed on all four
sides of the cutout. Rout
the back side of the panel
1/4" deep. 7/8" wide
(shaded area).
Detail C
Custom Dispenser Cutout
Installation Height Dimension A
83" 8-1/4"
83-1/2" 8-3/4"
84" 9-1/4"
84-1/2" 9-3/4"
Important:
Maintain 1-1/2" min. gap between
top of doors and bottom of grille panel.
Detail D
Raised Panel Design
Hole is
Cut After
Door
Fabrication
A
A
Handle
Side
*2 3/16"
Stile
Right Side
*3"
Stile
Left
Side
13 1/2"
Wide
Middle
Rail
Section AA
Custom Grille Panel
41 1/2"
A
Over 1/4" Thick (3/4" max) Panel
Grille Panel height can vary to fill installation
height.
Monogram
Dimensions &
Specifications
CUSTOM PANEL
DIMENSIONS

Related product manuals