EasyManua.ls Logo

Morgana DigiCreaser - MACHINE ASSEMBLY AND FUNCTIONALITY; Stacker Assembly Setup

Morgana DigiCreaser
29 pages
Print Icon
To Next Page IconTo Next Page
To Next Page IconTo Next Page
To Previous Page IconTo Previous Page
To Previous Page IconTo Previous Page
Loading...
Page13SYSTEM
creasedorperforated.
SettingtheStackerassembly
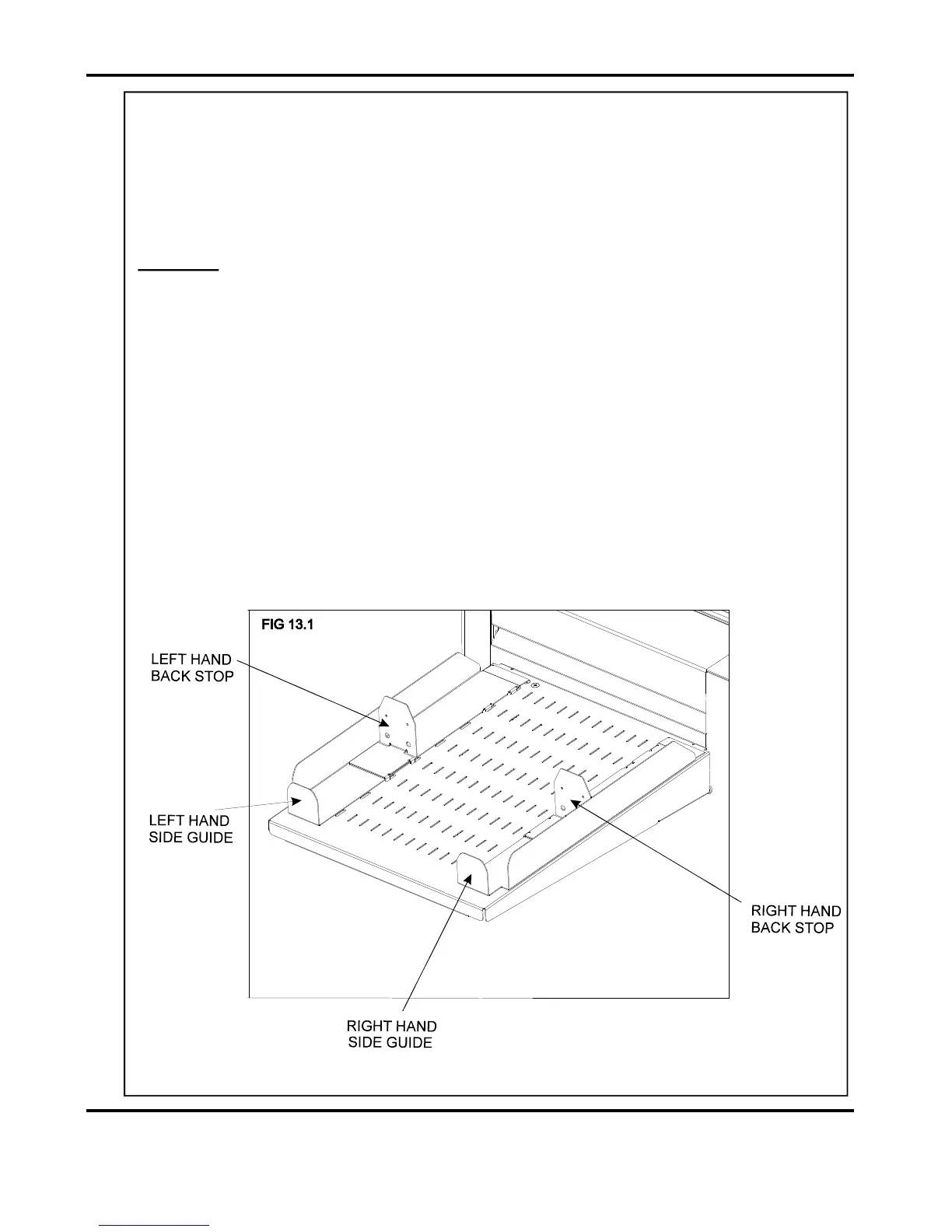
1. Assemblethestackerunittothemachineasshowninfig13.1below.
Important
Ensurethatthestackerunithasbeenassembledtothemachineproperly.However,
ifithasnot,theconnectiononthemagneticswitchwillbebrokenandthemachine
willnotoperate(seeTroubleshootingpagesfordetails).
Therearetwosideguidesonthestackerunit;alefthanded(fixed)guideandaright
guide.Theguideswillcontrolthewayinwhichthepaperiscollatedbysettingtheir
positionsonthestackerbed.
2.
3.
Placeasinglesheet(fromthestacktobecreased/perforated)ontothestackerbed
againstthelefthandguide.
Positionthe‘righthandsideguideontothestackerbedleavingaminimum
clearanceofapproximately1mmeachsideofthesheet.
handed(movable)guideheldonbyamagneticstrip.Thereisalsoalefthandextension
TheStackerAssembly
ThestackerunitontheDigicreaserisusedtocatchthesheetsoncetheyhavebeen
DigiCreaser