EasyManua.ls Logo

Motorisation+ SLIDER SLD400LED - Page 34

Default Icon
Print Icon
To Next Page IconTo Next Page
To Next Page IconTo Next Page
To Previous Page IconTo Previous Page
To Previous Page IconTo Previous Page
Loading...
PT
34
COM
PAR
OPEN
CLOSE
SBS
NEG
PH-POW
PH1
PH2
COM
FLASH
LED
SEN
SHIELD
ANT
ESCUDO
ANT
COM
STOP
EDGE
EDGE
COM
ELEC
COM
IND
FONTE DE
ENERGIA
N
T2A
L
230Vac
50/60Hz
PHOTOTEST
LUZ
SENSOR CREPÚSCULO
SAÍDA DE LED
PARE
ABRIR
FOTOCÉLULA 1
FOTOCÉLULA 2
PERTO
PARCIAL
PASSO A PASSO
+ COMUM
+ COMUM
LIMITE DE
SEGURANÇA
BLOQUEIO
ELÉTRICO
NEGATIVO
SBS
M1
M2
BATERIAS
(ACESSÓRIO)
COMUM
FLASH
COMUM
FLASH
PH1
RX
2
1
PH1
TX
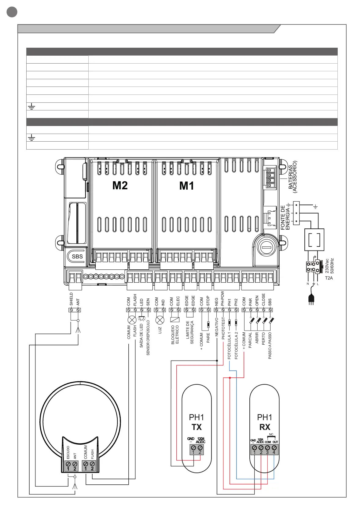
4.7 - Ligações elétricas
TRANSFORMADOR
ATENÇÃO - Antes de fazer as ligações, vericar se a unidade não está ligada à alimentação elétrica.
LIGAÇÕES MÓDULO DE POTÊNCIA
LS1 Entrada do m de curso 1
LS2 Entrada do m de curso 2
V+ Comum do m de curso / positivo de alimentação do encoder (12 Vdc 50 mA MAX)
ENC Entrada do sinal do encoder S
NEG Negativo de alimentação do encoder
M- Saída do motor
Terra
M+
Saída do motor
LIGAÇÕES DE ALIMENTAÇÃO
L Fase da alimentação 230 Vac 50-60 Hz
Terra
N Neutro da alimentação 230 Vac 50-60 Hz