EasyManua.ls Logo

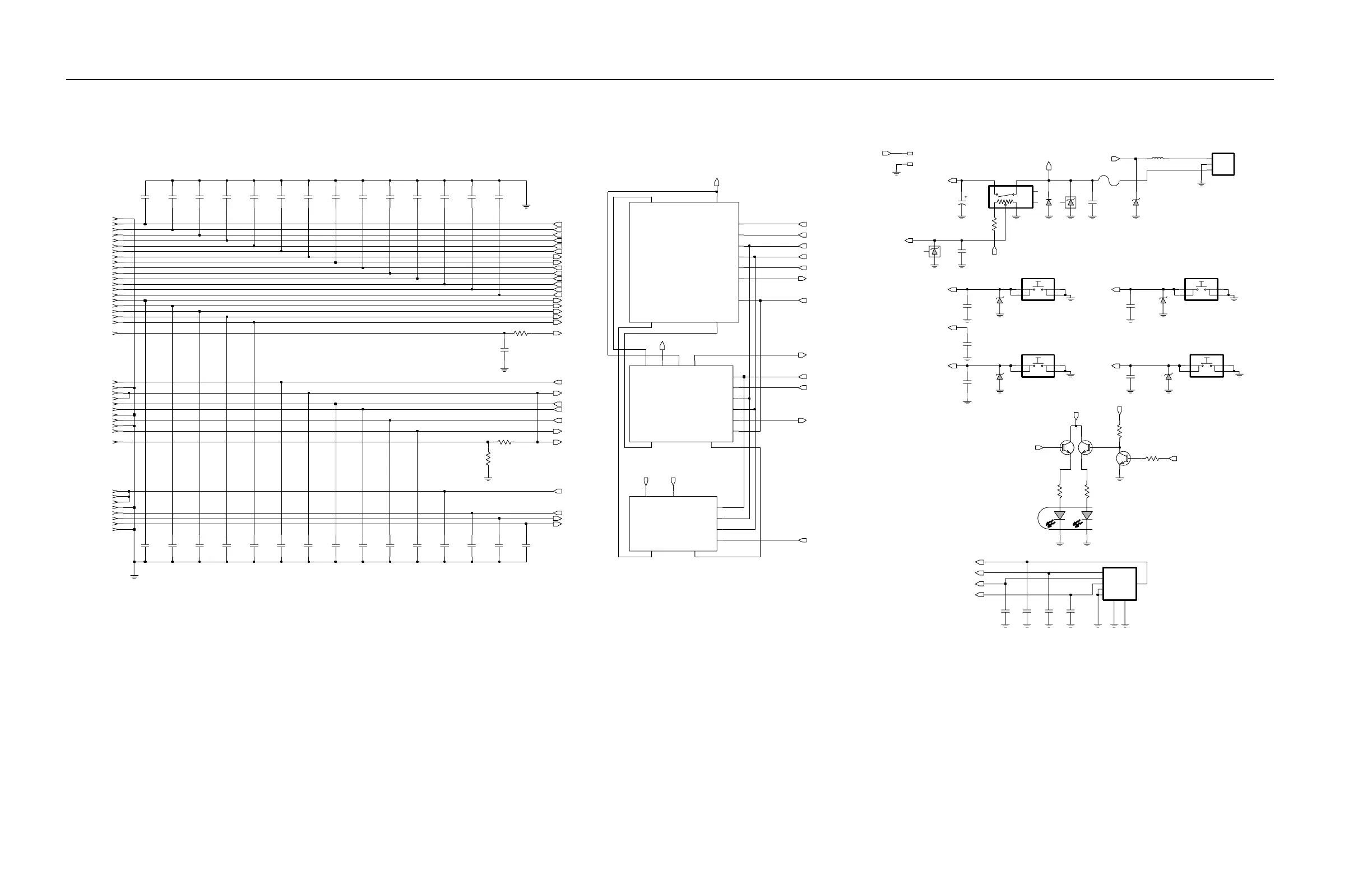
Motorola GP338 Plus - UHF Controls and Switches Schematic Diagram (Sheet 1; UHF Controls and Switches Schematic Diagram (Sheet 2 of 2 for 8404077 G09 PCB)

Motorola GP338 Plus
206 pages
To Next Page IconTo Next Page
To Next Page IconTo Next Page
To Previous Page IconTo Previous Page
To Previous Page IconTo Previous Page
Loading...
5B-20 Circuit Board/Schematic Diagrams and Parts List
ZMY0130796-B
RADIO_CODE
BATT-
BATT+
Q502
BATTERY_CONTACT
J200-7
J200-9
100pF
C514
J200-12
100pF
C527C525
100pF
C526
100pF
J200-32
J200-23
J200-2
VR506
6.8V
C511
100pF
Q505
100pF
C533
100pF
C532
100pF
C531
J200-19
LOW
1
5
HIGH
3
TAB1
6
TAB2
7
2
6.8V
VR440
SWITCH
S502
4
J200-10
J200-15
J200-25
NU
C521
J200-17
J200-36
J200-40
J200-39
J200-21
J200-5
100pF
C536
J200-3
J200-22
C534
J200-28
100pF
C529
J200-34
100pF
IMX1
5
1
6
100pF
C503
4
B2
1
A1
3
A2
2
B1
J200-33
PB502
SWITCH
J200-29
100pF
C530
J200-30
J200-1
R502
180
SWITCH
PB504
1
A1
3
A2
2
B1
4
B2
B503
6.8V
VR443
B504
6.8V
2
4
3
VR501
2
CR501
1
C554
100pF
.01uF
C513
J200-31
J200-24
100pF
C505
J200-18
J200-16
RECEIVER
16.8MHz
CLK
DACRx
DATA
DEMOD
LVZIF_SEL
R5
RSSI
RX_IN RX_INJ
Vdda
79
GND1
PC0
1
PC1
2
PC2
48
PC3
SWITCH
S501
C0
C0
C1
C1
GND
J200-27
J200-13
J200-20
J200-14
J200-4
J200-6
J200-11
J200-8
.01uF
C523
J200-37
J200-26
24
13
J200-38
CR503
F501
24V
21
VR441
6.8V
TRANSMITTER
5V
CLK
CSX
DATA
RESET
RX_IN TX_INJ
UNSWB+
680
R501
10K
R505
1
A1
3
A2
2
B1
4
B2
L505
390nH
SWITCH
PB501
CONN_J
B501
2
DATA
1
NEG
3
POS
100pF
C547
100pF
C546
100pF
C545
100pF
C544
NU
C543
100pF
C528
12V
VR439
NU
C542C540
NU
C541C539
NUNU
0.47uF
100pF
C538
C502
100pF
C512
.01uF
C520
100pF
C537
NU
R511
2
B1
4
B2
C522
.01uF
SWITCH
PB505
1
A1
3
A2
0
16.8MHz
5V
CLK
CSX
DATA
LOCK
MODIN
R5
RX_INJ
SWB+
TX_INJ
Vdda
R507
6.8V
FGU
100pF
C535
VR444
47K
R506
0
R510
100pF
NU
R509
C555
J200-35
100pF
C553
100pF
C552
100pF
C551C549
100pF
C550C548
100pF
16.8MHz
UNSWB+
SB2
SB3
SB1
PTT
NU
5V
LI_ION
RSSI
CLK
LVZIF_SEL
BATT_CODE
SWB+
SWB+
Vdda
MODIN
LOCK
RESET
DACRX
UNSWB+
SB1
DEMOD
SB3
DATA
RED_LED
GREEN_LED
MECH_SWB+
RTA0
RTA1
RTA2
RTA3
PTT
SB2
EMER
VOL
CSX
Vdda
SWB+
UNSWB+
RESET
DATA
CSX
CLK
5V
GND
RTA0
RTA1
RTA2
RTA3
VOL
MECH_SWB+
EMER
LI_ION
BATT_CODE
Vdda
Vdda
DACRX
DEMOD
RSSI
LVZIF_SEL
16.8MHz
LOCK
MODIN
5V
GREEN_LED
SWB+
RED_LED
UHF Controls And Switches Schematic Diagram
(sheet 2 of 2 for 8404077G09 PCB)

Table of Contents

Related product manuals