EasyManua.ls Logo

Nautel CL40 - Page 22

Default Icon
49 pages
Print Icon
To Next Page IconTo Next Page
To Next Page IconTo Next Page
To Previous Page IconTo Previous Page
To Previous Page IconTo Previous Page
Loading...
Page 2-10 CL40 Antenna Technical Instruction Manual
Issue 3.0 Section 2 Preparation for Use and Installation
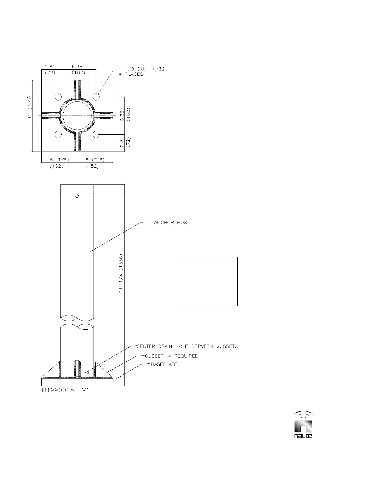
Figure 2-3b: Non-Standard Base
Mounting design
should be based on
a net overturning
moment at the top of
base plate of 18,500
foot pounds.
ALL DIMENSIONS IN INCHES (mm)

Related product manuals