EasyManua.ls Logo

Nexo RS Series

Default Icon
76 pages
To Next Page IconTo Next Page
To Next Page IconTo Next Page
To Previous Page IconTo Previous Page
To Previous Page IconTo Previous Page
Loading...
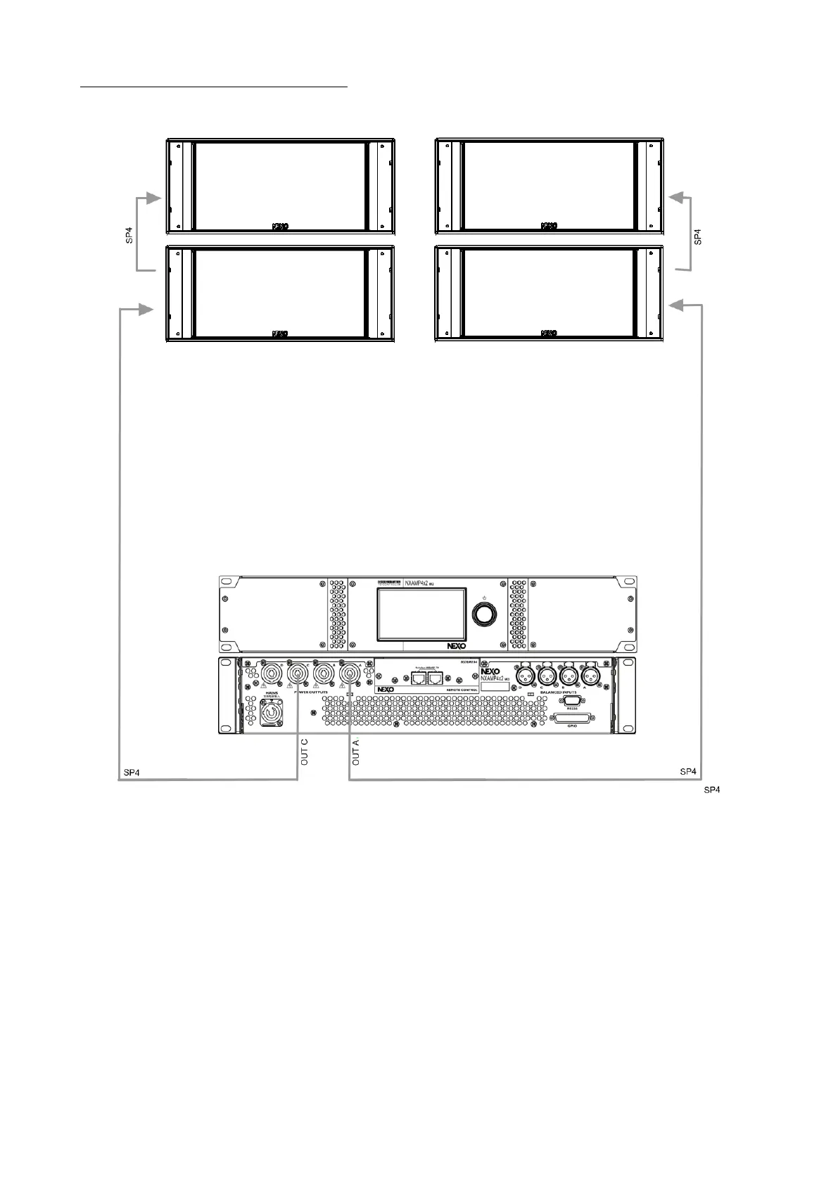
CONNECTION DIAGRAMS
Page 12 / 76 System Manual RS Series
3.3 RS15 / NXAMP4x2mk2 (4 channels mode)

Table of Contents

Related product manuals