EasyManua.ls Logo

NORBIT WBMS - Page 138

NORBIT WBMS
142 pages
Print Icon
To Next Page IconTo Next Page
To Next Page IconTo Next Page
To Previous Page IconTo Previous Page
To Previous Page IconTo Previous Page
Loading...
10.4.3 User Manual Contents April 17, 2020
Firmware: 5.2.1 Page 138 of 142
E5.
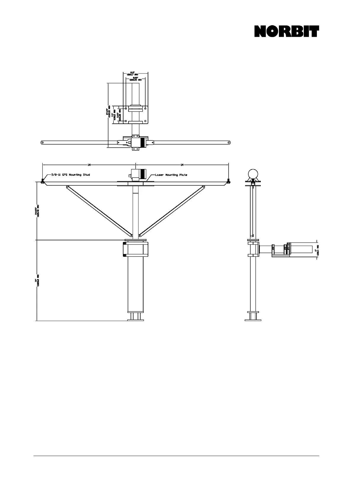
NORBIT Mini Mount Outline with Laser Stand

Related product manuals